Prix
370 000€
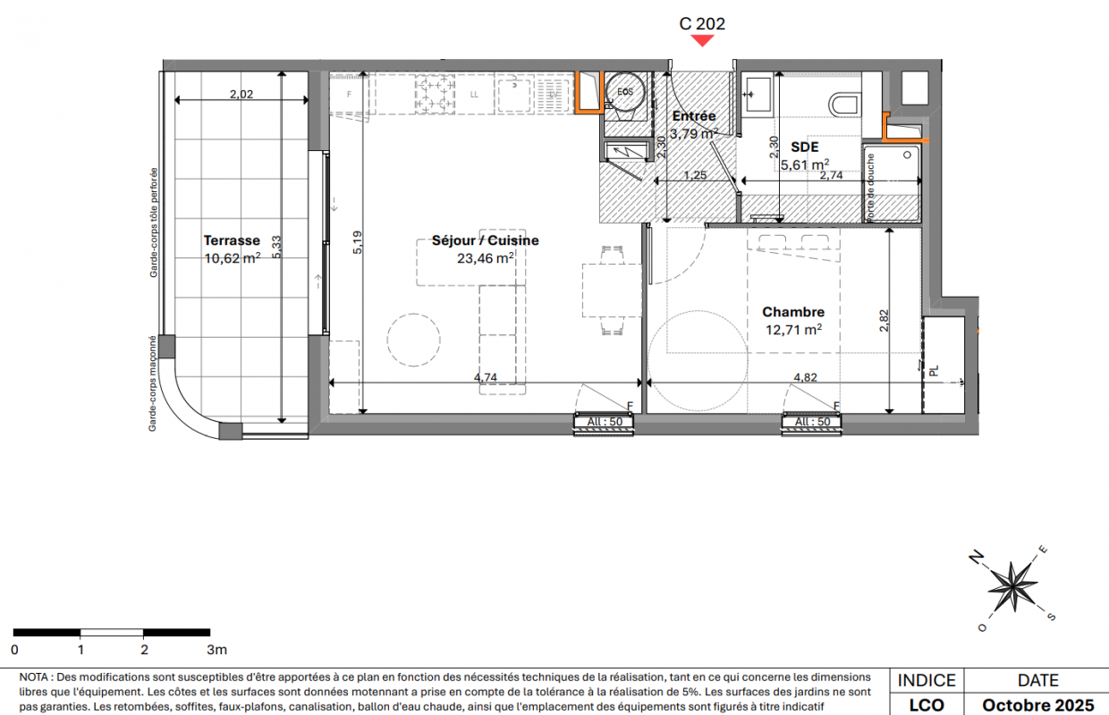
Type
Appt. au 0-RDC
Pièces
T2
Surface
46.15 m²
Exposition
-
Ville
Fréjus (83600)
Livraison
2ème trimestre 2028
Informations
01 81 80 39 10

Présentation du programme "Marina B - FREJUS"

Découvrez cette résidence idéalement située au port de Fréjus, face à la marina et à quelques pas de la mer, dans un environnement privilégié entre élégance méditerranéenne et douceur de vivre.

Conçue dans un esprit contemporain inspiré de l'architecture du Sud, la résidence s'organise autour d'un vaste coeur paysager et propose des appartements lumineux ouverts sur de généreux espaces extérieurs.

Les logements peuvent être éligibles au Prêt à Taux Zéro (PTZ)*, sous réserve des conditions prévues par la réglementation.

Contactez-nous dès aujourd'hui pour découvrir en avant-première cette nouvelle adresse d'exception.

En copromotion avec AREV PROMOTION.

Autres logements T2 du programme "Marina B - FREJUS"

Disponibilité Prix Genre Pièces Surface Étage
Voir
Disponible
360 000€ Appt. T2 46.15m2 0-RDC
DO NOT CLICK