Ce lot n’est plus disponible chez VIANOVA ou est vendu.
Vous pouvez revenir dans 24h pour vérifier le stock à jour ou contacter un conseiller Vianova pour vérifier le stock en direct.
Vous pouvez également continuer votre recherche sur notre site « ici ».
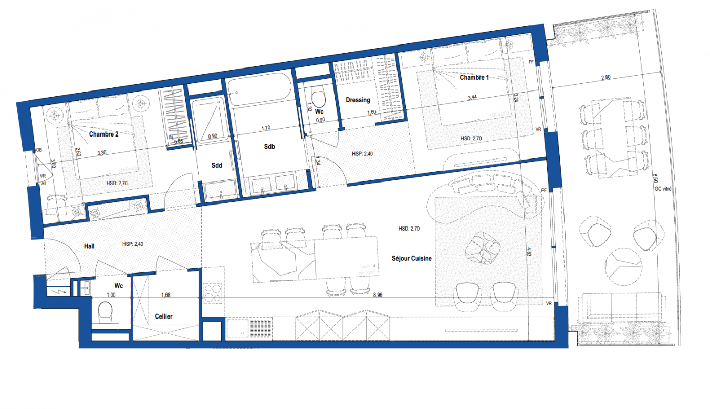
1 174 000€
Appt. au 3ème
T3
83 m²
Est
Villeneuve-Loubet (06270)
4ème trimestre 2029
01 81 80 39 10
Présentation du programme "Carat"
Villeneuve Loubet Plage : découvrez une résidence neuve de prestige en bord de mer méditerranée, les pieds dans le sable. Carat est bien plus qu'un programme immobilier neuf sur la Côte d'Azur : c'est une expérience de vie exclusive, directement sur le littoral, face à la mer ! Située à Villeneuve-Loubet, entre Nice et Cannes, Carat propose des appartements d'exception du 2 au 5 pièces, tous prolongés par de grandes terrasses, avec pour la majorité une vue imprenable sur la mer Méditerranée.
Pensée pour une clientèle exigeante, Carat offre des prestations rares et luxueuses : une piscine sur le toit avec vue panoramique sur la mer, une conciergerie privée et un accès direct à la plage.
Encore confidentielle, Villeneuve-Loubet séduit par son cadre de vie exceptionnel, entre mer, nature. À 15 minutes de l'aéroport de Nice, cette commune offre une accessibilité idéale tout en préservant son authenticité. À proximité immédiate, profitez d'activités variées : sports nautiques, tennis, padel, équitation, golf et balades dans le Parc naturel des Rives du Loup. À quelques minutes à pied, Marina Baie des Anges, port emblématique de la Côte d'Azur, accueille des bateaux jusqu'à 30 mètres.
Carat, une résidence rare, pour une clientèle en quête d'un immobilier unique sur la plage.
Autres logements T3 du programme "Carat"
| Disponibilité | Prix | No | Genre | Pièces | Surface | Étage | Disponibilité | Prix | ||
|---|---|---|---|---|---|---|---|---|---|---|
| Voir | Archivé | 1 282 000€ | 1113 | Appt. | T3 | 94m2 | 1er | Archivé | 1 282 000€ | Voir |
| Voir | Archivé | 1 450 000€ | 1211 | Appt. | T3 | 94m2 | 2ème | Archivé | 1 450 000€ | Voir |
| Voir | Archivé | 898 999€ | 1102 | Appt. | T3 | 86m2 | 1er | Archivé | 898 999€ | Voir |
| Voir | Archivé | 1 358 999€ | 1107 | Appt. | T3 | 80m2 | 1er | Archivé | 1 358 999€ | Voir |
| Voir | Archivé | 1 144 000€ | 1204 | Appt. | T3 | 84m2 | 2ème | Archivé | 1 144 000€ | Voir |
| Voir | Archivé | 971 999€ | 1202 | Appt. | T3 | 86m2 | 2ème | Archivé | 971 999€ | Voir |
| Voir | Archivé | 1 043 999€ | 1203 | Appt. | T3 | 83m2 | 2ème | Archivé | 1 043 999€ | Voir |
| Voir | Archivé | 1 138 000€ | 1302 | Appt. | T3 | 86m2 | 3ème | Archivé | 1 138 000€ | Voir |
| Voir | Archivé | 1 275 000€ | 1006 | Appt. | T3 | 80m2 | 0-RDC | Archivé | 1 275 000€ | Voir |
| Voir | Archivé | 895 000€ | 1001 | Appt. | T3 | 101m2 | 0-RDC | Archivé | 895 000€ | Voir |
| Voir | Archivé | 1 009 000€ | 1008 | Appt. | T3 | 87m2 | 0-RDC | Archivé | 1 009 000€ | Voir |