300 000€
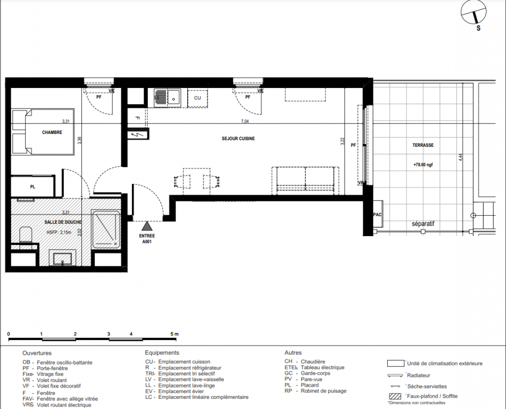
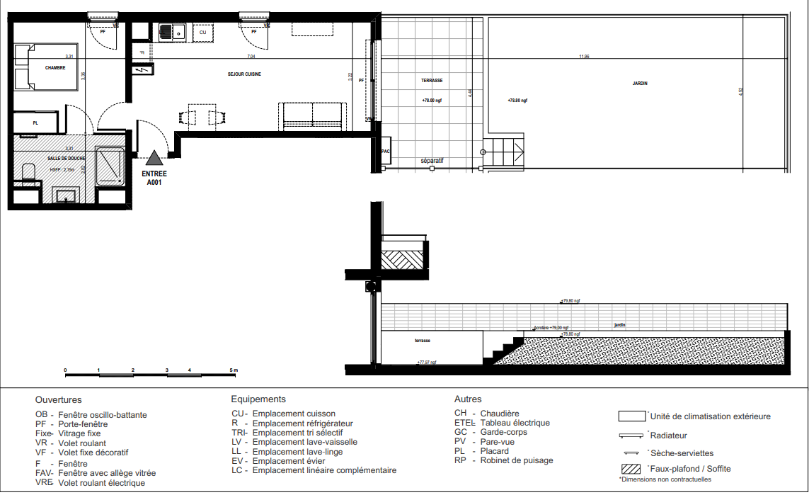
Appt. au 0-RDC
T2
39.23 m²
Est
Antibes (06600)
2ème trimestre 2028
01 81 80 39 10
Présentation du programme "LUMINEA"
Idéalement située à Antibes, entre mer et collines, la résidence Luminéa s’inscrit dans un environnement résidentiel calme et recherché, au cœur du quartier des Combes. À proximité immédiate des commerces, écoles, transports et grands axes, elle offre un équilibre rare entre sérénité, accessibilité et qualité de vie sur la Côte d’Azur. Pensée comme une parenthèse de bien-être, Luminéa se compose de deux bâtiments à taille humaine offrant des logements du studio au 4 pièces. L’architecture contemporaine met la lumière au centre du projet grâce à des orientations optimisées, de larges baies vitrées et de beaux prolongements extérieurs : jardins privatifs en rez-de-chaussée, terrasses, solariums et pergolas selon les typologies. Les volumes sont généreux, fonctionnels et conçus pour s’adapter aux modes de vie actuels. Les espaces extérieurs laissent place à des jardins paysagers et à une végétation méditerranéenne préservée, créant un véritable îlot de fraîcheur. La résidence favorise le confort au quotidien avec des stationnements majoritairement en sous-sol, des caves, des locaux vélos et des accès sécurisés. Engagée dans une démarche durable, Luminéa bénéficie des certifications RE2020 garantissant performance énergétique, confort thermique et sobriété environnementale. Chaque logement profite de prestations de qualité et de nombreuses possibilités d’aménagement intérieur pour répondre aux attentes de chacun. Luminéa incarne une vision exigeante et durable de l’habitat, alliant modernité, nature et art de vivre méditerranéen dans l’une des villes les plus attractives de la région. Contactez dès à présent nos équipes commerciales pour rececoir plus d'informations
Autres logements T2 du programme "LUMINEA"
| Disponibilité | Prix | No | Genre | Pièces | Surface | Étage | Disponibilité | Prix | ||
|---|---|---|---|---|---|---|---|---|---|---|
| Voir | Disponible | 299 000€ | LA002 | Appt. | T2 | 34.28m2 | 0-RDC | Disponible | 299 000€ | Voir |
| Voir | Optionné | 292 000€ | LA007 | Appt. | T2 | 42.41m2 | 0-RDC | Optionné Mais pas encore vendu 😉 | 292 000€ | Voir |
| Voir | Disponible | 265 000€ | LA101 | Appt. | T2 | 33.81m2 | 0-RDC | Disponible | 265 000€ | Voir |
| Voir | Disponible | 275 000€ | LA102 | Appt. | T2 | 37.76m2 | 0-RDC | Disponible | 275 000€ | Voir |
| Voir | Disponible | 275 000€ | LA103 | Appt. | T2 | 36.82m2 | 0-RDC | Disponible | 275 000€ | Voir |
| Voir | Disponible | 277 000€ | LA107 | Appt. | T2 | 38.31m2 | 0-RDC | Disponible | 277 000€ | Voir |
| Voir | Disponible | 287 000€ | LA108 | Appt. | T2 | 39.99m2 | 0-RDC | Disponible | 287 000€ | Voir |
| Voir | Disponible | 310 000€ | LA208 | Appt. | T2 | 38.31m2 | 0-RDC | Disponible | 310 000€ | Voir |
| Voir | Disponible | 320 000€ | LA209 | Appt. | T2 | 39.99m2 | 0-RDC | Disponible | 320 000€ | Voir |
| Voir | Disponible | 330 000€ | LA211 | Appt. | T2 | 39.79m2 | 0-RDC | Disponible | 330 000€ | Voir |
| Voir | Disponible | 330 000€ | LA303 | Appt. | T2 | 40.16m2 | 1er | Disponible | 330 000€ | Voir |

