467 900€
Maison au 0-RDC
T5
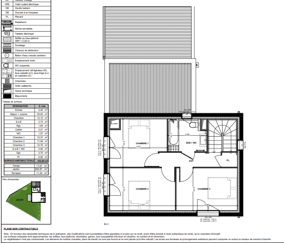
103 m²
Sud-Ouest
Nantes (44000)
4ème trimestre 2025
01 81 80 39 10
Présentation du programme "LES JARDINS D'ILARIS"
EN CE MOMENT : Jusqu'à 8 000 € de réduction* + 0 € frais de notaire* ! + OFFRE EXCLUSIVE POUR LES APPARTEMENTS : Baisse de prix et cuisine offerte*DERNIERS APPARTEMENTS LIVRÉS EN 2025 !MAISON TÉMOIN DÉCORÉE À VISITER SUR RDV ! LES JARDINS D'ILARIS est un ensemble résidentiel proposant des appartements et des maisons, situé dans la commune de Saint-Hilaire-de-Riez sur le littoral vendéen, à 1 km de la plage de Boisvinet et du charmant bourg de Saint-Gilles-Croix-de-Vie.Dans ce quartier résidentiel calme à proximité de toutes les commodités, découvrez des maisons de ville et des maisons individuelles confortables et baignées de lumière de 2 à 4 chambres. Chaque maison dispose de son jardin privatif, allant jusqu'à 800 m², idéal pour profiter des beaux jours. Découvrez aussi nos derniers appartements 2 pièces disponibles pour un emménagement fin novembre 2025 !PRÊT À TAUX ZÉRO 0% ! Profitez du PTZ, un vrai coup de pour l'achat de votre appartement ou votre maison de ville !Envie d’investir et de préparer l’avenir ? Réalisez ici un investissement pertinent au cœur d’une station balnéaire prisée. Nous avons établi un partenariat avec la conciergerie HOOMY afin d’assurer des revenus locatifs en LMNP (Loueur Meublé Non Professionnel), elle vous laissera également la possibilité de jouir de votre bien à votre convenance. Cette solution vous permet d’optimiser la fiscalité et la rentabilité de votre investissement. Nous aurons également la capacité de vous accompagner pour votre financement, l’établissement bancaire prendra en compte 90% de vos revenus locatifs qui pourront vous aider à augmenter votre capacité d’emprunt. *Voir conditions de l'offre sur lesjardinsdilaris.fr
Autres logements T5 du programme "LES JARDINS D'ILARIS"
| Disponibilité | Prix | No | Genre | Pièces | Surface | Étage | Disponibilité | Prix | ||
|---|---|---|---|---|---|---|---|---|---|---|
| Voir | Disponible | 499 900€ | M14 | Maison | T5 | 103m2 | 0-RDC | Disponible | 499 900€ | Voir |
| Voir | Disponible | 499 900€ | M15 | Maison | T5 | 103m2 Le bon plan | 0-RDC | Disponible | 499 900€ | Voir |
| Voir | Disponible | 494 900€ | M16 | Maison | T5 | 103.94m2 | 0-RDC | Disponible | 494 900€ | Voir |


