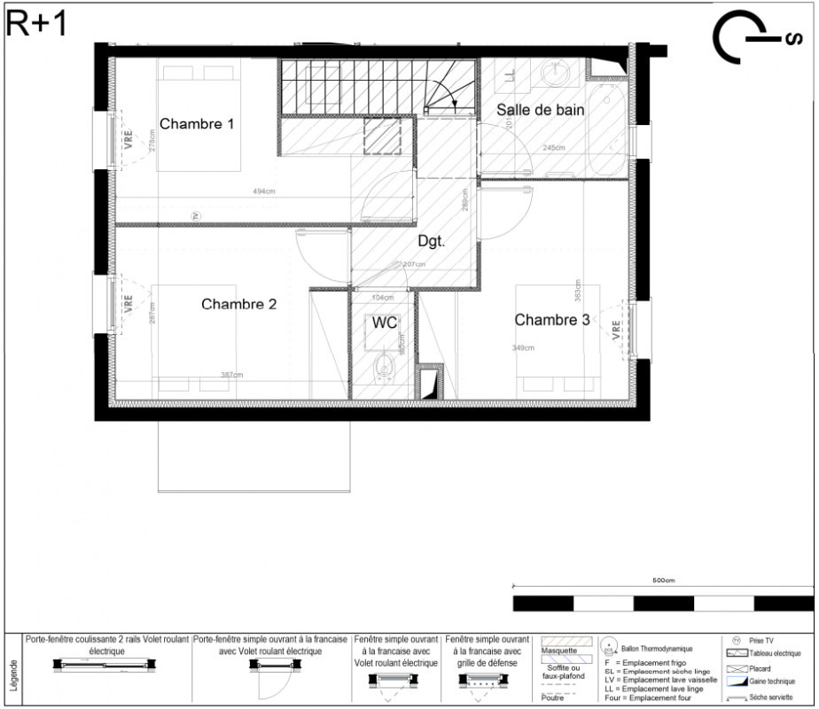
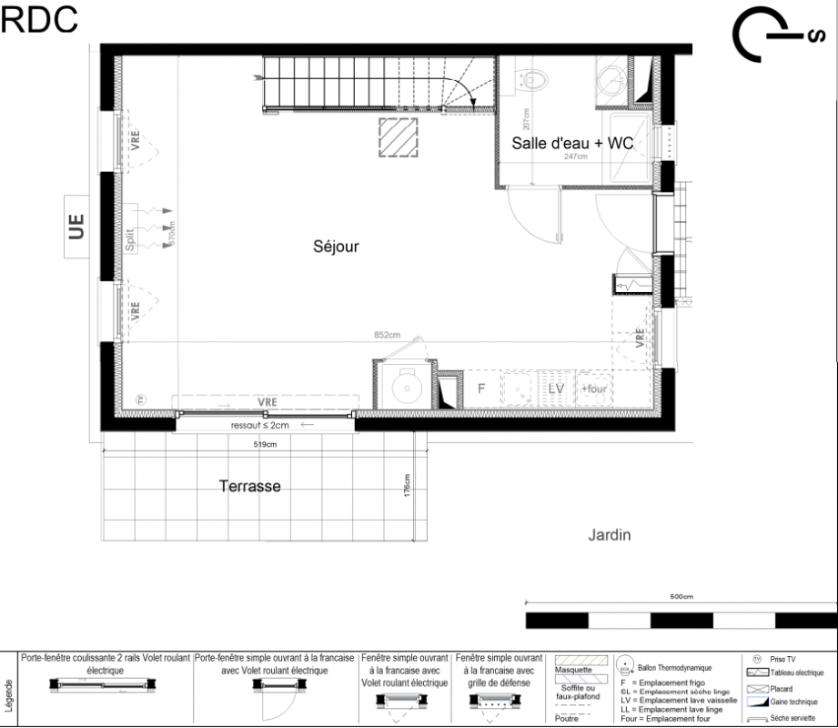
Prix
295 900€
Type
Maison au 0-RDC
Pièces
T4
Surface
87.1 m²
Exposition
-
Ville
Sauvian (34410)
Livraison
4ème trimestre 2025
Informations
01 81 80 39 10

Présentation du programme "Naturea"

Autres logements T4 du programme "Naturea"

Pas de logements disponibles
DO NOT CLICK