Prix
385 000€
385 000€
Type
Appt. au 1er
Appt. au 1er
Pièces
T5
T5
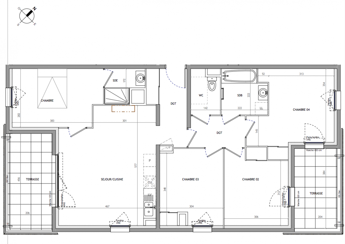
Surface
92.6 m²
92.6 m²
Le bon plan
Exposition
Est
Est
Ville
Montpellier (34000)
Montpellier (34000)
Livraison
2ème trimestre 2028
2ème trimestre 2028
Informations
01 81 80 39 10
01 81 80 39 10
Présentation du programme "Toshi"
Dans l'un des quartiers les plus dynamiques de Montpellier, choisissez le calme d'une rue résidentielle à 5 mn à pied du Tramway, des commerces et écoles. Une adresse idéale pour habiter ou investir, en prise directe avec les bassins d'emploi de l'Ouest Montpelliérain. Laissez-vous séduire par cette nouvelle résidence sécurisée dotée d’un parc paysager