Prix
279 000€
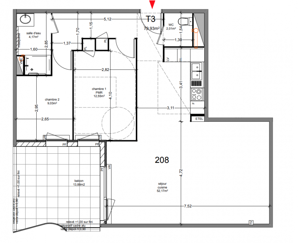
Type
Appt. au 0-RDC
Pièces
T3
Surface
86.87 m²
Exposition
Nord-Ouest
Ville
Agde (34300)
Livraison
1er trimestre 2026
Informations
01 81 80 39 10

Présentation du programme "ONYX"

UN EMPLACEMENT IDÉAL Arrêt de bus « Les Garrigues » : au pied de la résidence Centre commercial : les portes du litoral : 5 min Plage de Rochelongue et Richelieu : 10 min Port du cap d’Agde : 12 min Aéroport : 16 min Sète et Bézier : 30 min 60 LOGEMENTS DU STUDIO AU 4 PIÈCES TERRASSE OU REZ-DE-JARDIN Des extérieurs pour chaque logement.Un emplacement de 1er choixUne architecture élégante et moderneDes appartements à la conception unique

Autres logements T3 du programme "ONYX"

Disponibilité Prix Genre Pièces Surface Étage
Voir
Disponible
203 000€ Appt. T3 65.74m2 0-RDC