Prix
135 000€
135 000€
Type
Appt. au 1er
Appt. au 1er
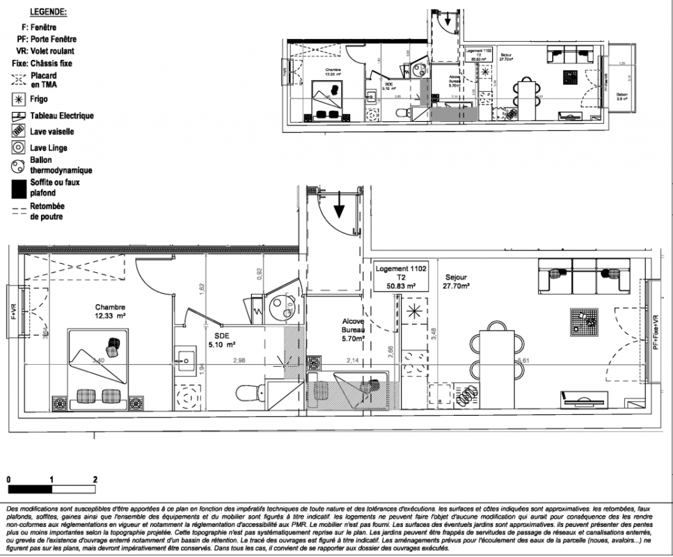
Pièces
T2
T2
Surface
50 m²
50 m²
Exposition
Sud
Sud
Ville
Tarbes (65000)
Tarbes (65000)
Livraison
1er trimestre 2025
1er trimestre 2025
Informations
01 81 80 39 10
01 81 80 39 10
Présentation du programme "RESIDENCE LAMARTINE"
Nouveau à TarbesDécouvrez notre nouvelle résidence idéalement située en plein centre de Tarbes.Avec seulement 5 lots à la vente en 2 et 3 pièces tous situés au 1er étage, cette résidence vous offrira confort, modernité et accessibilité. Implantée dans l'une des meilleures adresses de Tarbes, la résidence Lamartine bénéficie d'un emplacement premium, face aux Halles Brauhauban. Un cadre de vie recherché, alliant animation urbaine, confort quotidien et valeur patrimoniale durable.