390 000€
Appt. au 4ème
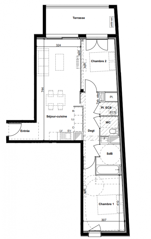
T3
63.33 m²
-
Toulouse (31000)
2ème trimestre 2028
01 81 80 39 10
Présentation du programme "ARCELIA"
Cette résidence neuve à taille humaine propose 26 appartements du 2 au 5 pièces, conçus pour répondre aux attentes des acquéreurs en quête de confort, de fonctionnalité et de qualité de vie en coeur de ville. Les logements offrent des plans optimisés, une belle luminosité et, pour la majorité, un extérieur privatif.
Le programme bénéficie d'une excellente accessibilité grâce à la proximité du métro ligne A - Saint-Cyprien République, du tramway T1 et T2 - Fer à Cheval, des lignes de bus et des pistes cyclables. Commerces, écoles, services et équipements culturels sont accessibles à pied.
Pensé pour l'habitat comme pour l'investissement, ARCELIA s'inscrit dans un secteur à forte attractivité résidentielle et locative, rare en immobilier neuf à Toulouse. La résidence dispose de stationnements en sous-sol, ainsi que de prestations soignées, conformes aux normes en vigueur.
Autres logements T3 du programme "ARCELIA"
| Disponibilité | Prix | No | Genre | Pièces | Surface | Étage | Disponibilité | Prix | ||
|---|---|---|---|---|---|---|---|---|---|---|
| Voir | Disponible | 370 000€ | 103 | Appt. | T3 | 60.59m2 | 1er | Disponible | 370 000€ | Voir |
| Voir | Disponible | 370 000€ | 104 | Appt. | T3 | 60.93m2 | 1er | Disponible | 370 000€ | Voir |
| Voir | Disponible | 390 000€ | 105 | Appt. | T3 | 65.59m2 | 1er | Disponible | 390 000€ | Voir |
| Voir | Disponible | 400 000€ | 205 | Appt. | T3 | 65.59m2 | 2ème | Disponible | 400 000€ | Voir |