Prix
159 810€
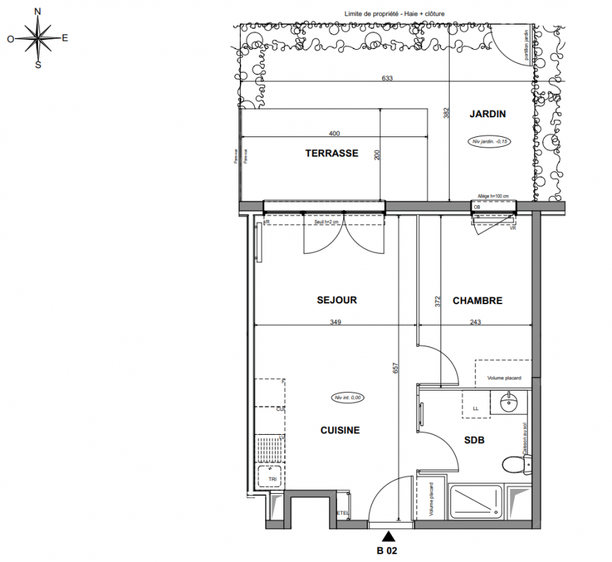
Type
Appt. au 0-RDC
Pièces
T2
Surface
36.89 m²
Exposition
Nord
Ville
Millau (12100)
Livraison
3ème trimestre 2028
Informations
01 81 80 39 10

Présentation du programme "Jardins D'Ayrolle"

Laissez-vous séduire par le charme d’une résidence aux accents historiques, dont l’architecture rend hommage aux traditions locales en reprenant les matériaux et la délicatesse des lignes provençales. Un charmant jardin intérieur, planté de majestueux platanes, invite à la quiétude tout en offrant de belles vues verdoyantes aux appartements. Du 2 au 4 pièces, les logements lumineux proposent des plans contemporains, fluides et fonctionnels, et s’ouvrent sur des balcons, terrasses ou jardins privatifs pour un art de vivre inégalé.

Autres logements T2 du programme "Jardins D'Ayrolle"

Disponibilité Prix Genre Pièces Surface Étage
Voir
Disponible
152 417€ Appt. T2 36.89m2 1er
DO NOT CLICK