Prix
248 530€
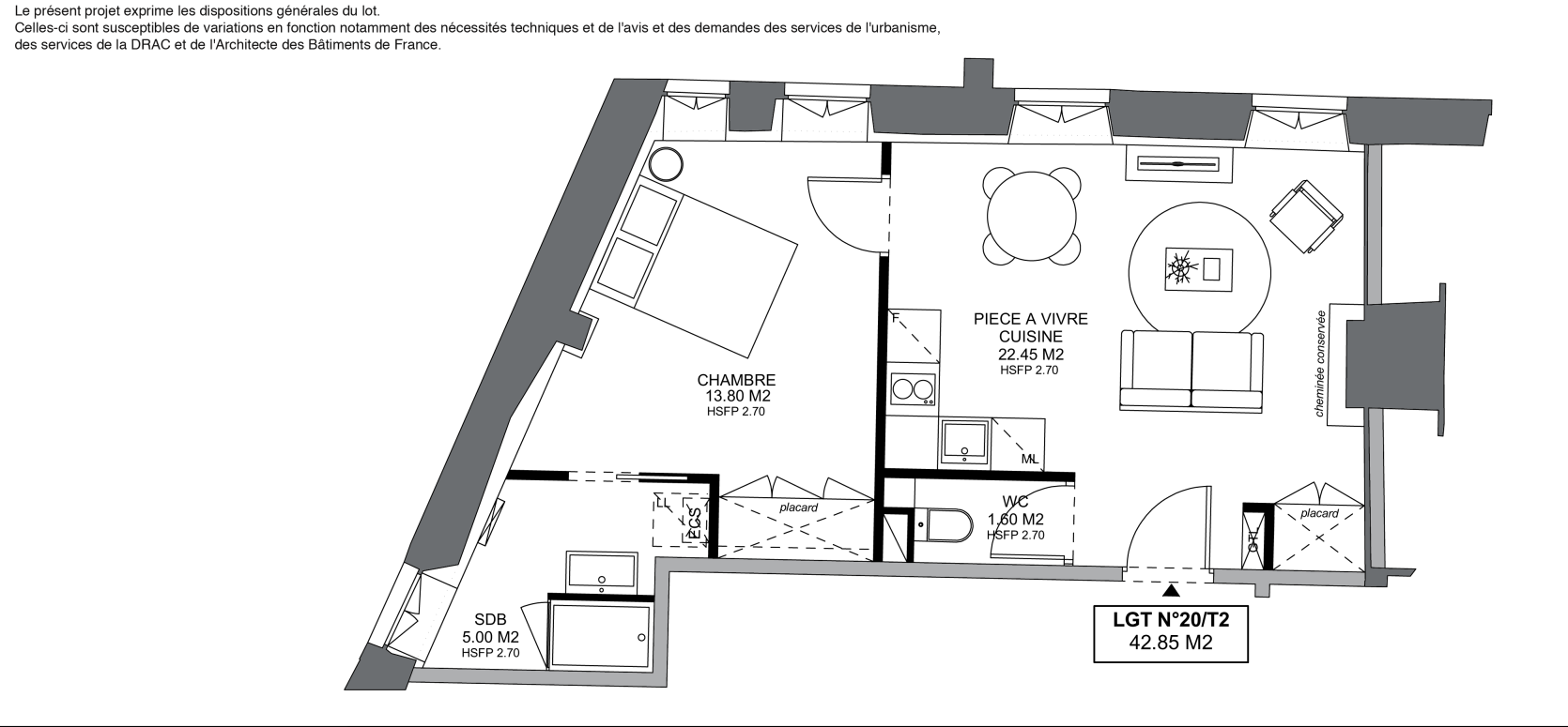
Type
Appt. au 2ème
Pièces
T2
Surface
42.85 m²
Exposition
Sud
Ville
Carcassonne (11000)
Livraison
3ème trimestre 2027
Informations
01 81 80 39 10

Présentation du programme "Hôtel De Sauzède 2"

Investissez à Carcassonne, patrimoine d’exception au cœur de l’Occitanie4ème région touristique de France avec plus de 2,45 millions de visiteurs par an, moteur d'une économie touristique florissante.Agglomération de 115 000 habitants, dont 46 000 à Carcassonne même.Ville historique au riche patrimoine, avec sa Cité Médiévale classée à l’UNESCO, ses remparts, son château et son architecture unique. Carcassonne, un cadre de vie prisé et porteurBassin d’emploi actif : 22 zones d’activités, 45 000 emplois, notamment dans le tourisme, l’agriculture et les énergies renouvelables.Une ville en croissance, avec plus de 3 000 nouveaux habitants chaque année.Un pôle éducatif en développement avec 1 800 étudiants et 15 établissements d’enseignement supérieur. Commodités et transports Située au cœur de la Bastide Saint-Louis, centre-ville historique de Carcassonne.Commerces, épiceries, écoles, collèges, IUT et centre hospitalier à moins de 10 min.Canal du Midi à 1 min, Place Carnot à 5 min, gare SNCF à 10 min à pied.Aéroport international à 8 min en voiture.Desserte rapide vers Toulouse (45 min), Narbonne (30 min) et Montpellier (1h30) grâce à la gare TGV et aux axes routiers (A61, N113). Focus Prestations/Résidence Un écrin de prestige au cœur de la ville : Ensemble immobilier du XIXe siècle réhabilité avec soin dans les règles du patrimoine.Matériaux haut de gamme : parquet chêne, cuisines équipées, salles de bains premium, menuiseries bois.Parc arboré clos de murs, aménagé par un paysagiste.Parties communes rénovées et décorées par un architecte d’intérieur. Le + du programme : Une adresse prestigieuse dans un bâtiment historique, au cœur du centre-ville.

Autres logements T2 du programme "Hôtel De Sauzède 2"

Disponibilité Prix Genre Pièces Surface Étage
Voir
Disponible
251 100€ Appt. T2 38.5m2 3ème
DO NOT CLICK