Prix
1 290 000€
Type
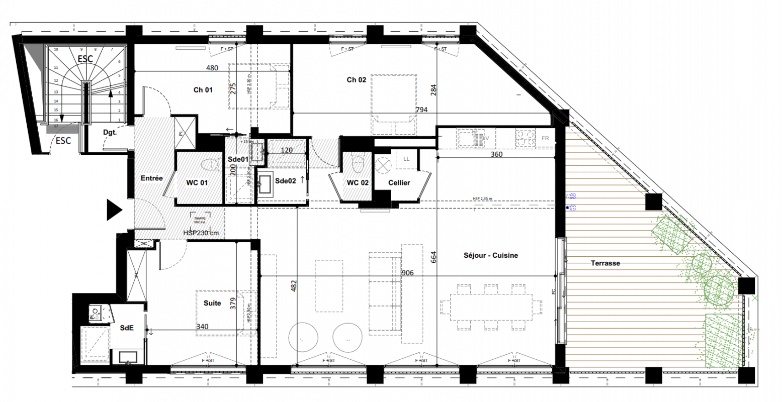
Appt. au 6ème
Pièces
T4
Surface
123.7 m²
Exposition
-
Ville
Bordeaux (33000)
Livraison
-
Informations
01 81 80 39 10

Présentation du programme "SKYLINE"


Parquet chêne collé dans les pièces de vies et chambres. Carrelage grand format dans les salles d’eau et WC.
3 suites parentales avec leur propre salle d’eau équipée (porte à galandage, faïence toute hauteur, meuble vasque suspendu…)
Menuiseries aluminium et double vitrage
Chauffage gaz et clim réversible
Accès sécurisé et unique pour chaque appartement
28m² de loggia + 160m² de rooftop privatif

Autres logements T4 du programme "SKYLINE"

Pas de logements disponibles
DO NOT CLICK