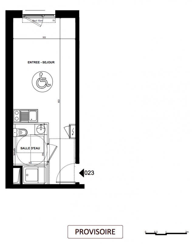
122 500€
Appt. au 0-RDC
Studio
23.31 m²
Sud
Niort (79000)
4ème trimestre 2027
01 81 80 39 10
Présentation du programme "Programme neuf Niort (79000)"
NOUVEAU à NIORT ! Investissez dans notre nouvelle résidence pour étudiants et jeunes actifs à 5 minutes du pôle universitaire ! Profitez d'une rentabilité locative jusqu'à 6,92 % et de notre offre exclusive du moment !Cette nouvelle résidence propose des studios fonctionnels, dont certains avec balcon, conçus pour offrir un cadre de vie confortable et adapté aux besoins des étudiants et jeunes actifs. Chaque logement bénéficie de prestations soignées, avec un local à vélos et des parkings en sous-sol pour la majorité des appartements.Pour favoriser le bien-être et les échanges entre résidents, des espaces communs sont mis à disposition : salle de sport, laverie et espace de coworking, accessibles librement au quotidien. D_architecture sobre et contemporaine, la résidence s_intègre harmonieusement dans un environnement paisible et verdoyant.Située dans un quartier résidentiel calme, elle se trouve à seulement 5 minutes à vélo du pôle universitaire, fait face à un parc boisé et se situe à proximité des bords de la Sèvre Niortaise.Commerces, services et équipements sont accessibles à pied ou à quelques minutes. Contactez vite un de nos conseillers pour découvrir tous nos appartements neufs NIORT et pour concrétiser votre projet d'investissement locatif !
Autres logements Studio du programme "Programme neuf Niort (79000)"
| Disponibilité | Prix | No | Genre | Pièces | Surface | Étage | Disponibilité | Prix | ||
|---|---|---|---|---|---|---|---|---|---|---|
| Voir | Disponible | 103 800€ | B033 | Appt. | Studio | 18.89m2 | 0-RDC | Disponible | 103 800€ | Voir |
| Voir | Disponible | 103 800€ | B035 | Appt. | Studio | 18.89m2 | 0-RDC | Disponible | 103 800€ | Voir |
| Voir | Disponible | 103 800€ | B036 | Appt. | Studio | 18.89m2 | 0-RDC | Disponible | 103 800€ | Voir |
| Voir | Disponible | 101 800€ | B038 | Appt. | Studio | 18.78m2 | 0-RDC | Disponible | 101 800€ | Voir |
| Voir | Disponible | 103 300€ | B042 | Appt. | Studio | 18.95m2 | 0-RDC | Disponible | 103 300€ | Voir |
| Voir | Disponible | 99 900€ | B046 | Appt. | Studio | 18.89m2 | 0-RDC | Disponible | 99 900€ | Voir |
| Voir | Disponible | 103 000€ | B133 | Appt. | Studio | 18.89m2 | 1er | Disponible | 103 000€ | Voir |
| Voir | Disponible | 103 000€ | B135 | Appt. | Studio | 18.89m2 | 1er | Disponible | 103 000€ | Voir |
| Voir | Disponible | 104 800€ | B140 | Appt. | Studio | 18.89m2 | 1er | Disponible | 104 800€ | Voir |
| Voir | Disponible | 104 800€ | B141 | Appt. | Studio | 18.89m2 | 1er | Disponible | 104 800€ | Voir |
| Voir | Disponible | 104 800€ | B142 | Appt. | Studio | 18.89m2 | 1er | Disponible | 104 800€ | Voir |
| Voir | Disponible | 104 400€ | B143 | Appt. | Studio | 18.89m2 | 1er | Disponible | 104 400€ | Voir |
| Voir | Disponible | 104 800€ | B145 | Appt. | Studio | 18.89m2 | 1er | Disponible | 104 800€ | Voir |
| Voir | Disponible | 100 600€ | B150 | Appt. | Studio | 18.89m2 | 1er | Disponible | 100 600€ | Voir |
| Voir | Optionné | 100 500€ | B151 | Appt. | Studio | 18.89m2 | 1er | Optionné Mais pas encore vendu 😉 | 100 500€ | Voir |
| Voir | Disponible | 98 300€ | B204 | Appt. | Studio | 18.89m2 | 2ème | Disponible | 98 300€ | Voir |
| Voir | Disponible | 104 900€ | B233 | Appt. | Studio | 18.89m2 | 2ème | Disponible | 104 900€ | Voir |
| Voir | Disponible | 108 000€ | B234 | Appt. | Studio | 18.89m2 | 2ème | Disponible | 108 000€ | Voir |
| Voir | Disponible | 104 900€ | B236 | Appt. | Studio | 18.89m2 | 2ème | Disponible | 104 900€ | Voir |
| Voir | Disponible | 108 000€ | B238 | Appt. | Studio | 18.72m2 | 2ème | Disponible | 108 000€ | Voir |
| Voir | Disponible | 107 100€ | B240 | Appt. | Studio | 18.89m2 | 2ème | Disponible | 107 100€ | Voir |
| Voir | Disponible | 103 900€ | B241 | Appt. | Studio | 18.89m2 | 2ème | Disponible | 103 900€ | Voir |
| Voir | Disponible | 107 100€ | B242 | Appt. | Studio | 18.89m2 | 2ème | Disponible | 107 100€ | Voir |
| Voir | Disponible | 103 900€ | B243 | Appt. | Studio | 18.89m2 | 2ème | Disponible | 103 900€ | Voir |
| Voir | Disponible | 103 900€ | B244 | Appt. | Studio | 18.89m2 | 2ème | Disponible | 103 900€ | Voir |
| Voir | Disponible | 107 100€ | B245 | Appt. | Studio | 18.89m2 | 2ème | Disponible | 107 100€ | Voir |
| Voir | Disponible | 102 400€ | B250 | Appt. | Studio | 18.89m2 | 2ème | Disponible | 102 400€ | Voir |
| Voir | Disponible | 119 500€ | B010 | Appt. | Studio | 24.79m2 | 0-RDC | Disponible | 119 500€ | Voir |
| Voir | Disponible | 103 900€ | B013 | Appt. | Studio | 18.89m2 | 0-RDC | Disponible | 103 900€ | Voir |
| Voir | Disponible | 118 800€ | B022 | Appt. | Studio | 21.39m2 | 0-RDC | Disponible | 118 800€ | Voir |
| Voir | Disponible | 108 900€ | B027 | Appt. | Studio | 18.89m2 | 0-RDC | Disponible | 108 900€ | Voir |
| Voir | Disponible | 108 900€ | B028 | Appt. | Studio | 18.89m2 | 0-RDC | Disponible | 108 900€ | Voir |
| Voir | Disponible | 106 300€ | B032 | Appt. | Studio | 18.89m2 | 0-RDC | Disponible | 106 300€ | Voir |
| Voir | Disponible | 121 900€ | B110 | Appt. | Studio | 24.79m2 | 1er | Disponible | 121 900€ | Voir |
| Voir | Disponible | 103 800€ | B112 | Appt. | Studio | 18.89m2 | 1er | Disponible | 103 800€ | Voir |
| Voir | Disponible | 105 400€ | B115 | Appt. | Studio | 18.95m2 | 1er | Disponible | 105 400€ | Voir |
| Voir | Disponible | 105 800€ | B126 | Appt. | Studio | 18.89m2 | 1er | Disponible | 105 800€ | Voir |
| Voir | Disponible | 105 800€ | B128 | Appt. | Studio | 18.89m2 | 1er | Disponible | 105 800€ | Voir |
| Voir | Disponible | 103 000€ | B129 | Appt. | Studio | 18.89m2 | 1er | Disponible | 103 000€ | Voir |
| Voir | Disponible | 105 800€ | B130 | Appt. | Studio | 18.89m2 | 1er | Disponible | 105 800€ | Voir |
| Voir | Disponible | 105 800€ | B132 | Appt. | Studio | 18.89m2 | 1er | Disponible | 105 800€ | Voir |
| Voir | Disponible | 127 200€ | B210 | Appt. | Studio | 24.79m2 | 2ème | Disponible | 127 200€ | Voir |
| Voir | Disponible | 105 400€ | B211 | Appt. | Studio | 26.58m2 | 2ème | Disponible | 105 400€ | Voir |
| Voir | Disponible | 103 000€ | B212 | Appt. | Studio | 18.89m2 | 2ème | Disponible | 103 000€ | Voir |
| Voir | Disponible | 103 000€ | B213 | Appt. | Studio | 18.89m2 | 2ème | Disponible | 103 000€ | Voir |
| Voir | Disponible | 105 800€ | B214 | Appt. | Studio | 18.89m2 | 2ème | Disponible | 105 800€ | Voir |
| Voir | Disponible | 102 900€ | B216 | Appt. | Studio | 18.95m2 | 2ème | Disponible | 102 900€ | Voir |
| Voir | Disponible | 103 000€ | B219 | Appt. | Studio | 18.89m2 | 2ème | Disponible | 103 000€ | Voir |
| Voir | Disponible | 102 400€ | B220 | Appt. | Studio | 18.89m2 | 2ème | Disponible | 102 400€ | Voir |
| Voir | Disponible | 124 900€ | B222 | Appt. | Studio | 21.45m2 | 2ème | Disponible | 124 900€ | Voir |
| Voir | Disponible | 128 400€ | B223 | Appt. | Studio | 23.29m2 | 2ème | Disponible | 128 400€ | Voir |
| Voir | Disponible | 107 000€ | B224 | Appt. | Studio | 18.89m2 | 2ème | Disponible | 107 000€ | Voir |
| Voir | Disponible | 104 900€ | B225 | Appt. | Studio | 18.89m2 | 2ème | Disponible | 104 900€ | Voir |
| Voir | Disponible | 108 000€ | B226 | Appt. | Studio | 18.89m2 | 2ème | Disponible | 108 000€ | Voir |
| Voir | Disponible | 112 400€ | B227 | Appt. | Studio | 18.89m2 | 2ème | Disponible | 112 400€ | Voir |
| Voir | Disponible | 108 000€ | B228 | Appt. | Studio | 18.89m2 | 2ème | Disponible | 108 000€ | Voir |
| Voir | Disponible | 108 000€ | B230 | Appt. | Studio | 18.89m2 | 2ème | Disponible | 108 000€ | Voir |
| Voir | Disponible | 104 900€ | B231 | Appt. | Studio | 18.89m2 | 2ème | Disponible | 104 900€ | Voir |
| Voir | Disponible | 108 000€ | B232 | Appt. | Studio | 18.89m2 | 2ème | Disponible | 108 000€ | Voir |
| Voir | Disponible | 102 400€ | B251 | Appt. | Studio | 18.89m2 | 2ème | Disponible | 102 400€ | Voir |
| Voir | Disponible | 114 000€ | B301 | Appt. | Studio | 18.8m2 | 3ème | Disponible | 114 000€ | Voir |
| Voir | Disponible | 101 500€ | B011 | Appt. | Studio | 26.58m2 Le bon plan | 0-RDC | Disponible | 101 500€ | Voir |
| Voir | Disponible | 101 500€ | B012 | Appt. | Studio | 18.89m2 | 0-RDC | Disponible | 101 500€ | Voir |
| Voir | Disponible | 101 500€ | B014 | Appt. | Studio | 18.89m2 | 0-RDC | Disponible | 101 500€ | Voir |
| Voir | Disponible | 101 500€ | B015 | Appt. | Studio | 18.95m2 | 0-RDC | Disponible | 101 500€ | Voir |
| Voir | Disponible | 98 400€ | B020 | Appt. | Studio | 18.89m2 | 0-RDC | Disponible | 98 400€ | Voir |
| Voir | Disponible | 98 400€ | B021 | Appt. | Studio | 18.89m2 | 0-RDC | Disponible | 98 400€ | Voir |
| Voir | Disponible | 102 800€ | B024 | Appt. | Studio | 18.89m2 | 0-RDC | Disponible | 102 800€ | Voir |
| Voir | Disponible | 103 800€ | B025 | Appt. | Studio | 18.89m2 | 0-RDC | Disponible | 103 800€ | Voir |
| Voir | Disponible | 103 800€ | B026 | Appt. | Studio | 18.89m2 | 0-RDC | Disponible | 103 800€ | Voir |
| Voir | Disponible | 103 800€ | B029 | Appt. | Studio | 18.89m2 | 0-RDC | Disponible | 103 800€ | Voir |
| Voir | Disponible | 103 800€ | B030 | Appt. | Studio | 18.89m2 | 0-RDC | Disponible | 103 800€ | Voir |
| Voir | Disponible | 103 800€ | B031 | Appt. | Studio | 18.89m2 | 0-RDC | Disponible | 103 800€ | Voir |
| Voir | Disponible | 103 000€ | B111 | Appt. | Studio | 26.58m2 | 1er | Disponible | 103 000€ | Voir |
| Voir | Disponible | 103 400€ | B114 | Appt. | Studio | 18.89m2 | 1er | Disponible | 103 400€ | Voir |
| Voir | Disponible | 100 600€ | B118 | Appt. | Studio | 18.89m2 | 1er | Disponible | 100 600€ | Voir |
| Voir | Disponible | 100 600€ | B121 | Appt. | Studio | 18.89m2 | 1er | Disponible | 100 600€ | Voir |
| Voir | Disponible | 105 400€ | B125 | Appt. | Studio | 18.89m2 | 1er | Disponible | 105 400€ | Voir |
| Voir | Disponible | 105 400€ | B127 | Appt. | Studio | 18.89m2 | 1er | Disponible | 105 400€ | Voir |
| Voir | Disponible | 99 800€ | B206 | Appt. | Studio | 18.89m2 | 2ème | Disponible | 99 800€ | Voir |
| Voir | Disponible | 98 300€ | B208 | Appt. | Studio | 18.89m2 | 2ème | Disponible | 98 300€ | Voir |
| Voir | Disponible | 98 300€ | B209 | Appt. | Studio | 18.89m2 | 2ème | Disponible | 98 300€ | Voir |
| Voir | Disponible | 102 400€ | B218 | Appt. | Studio | 18.89m2 | 2ème | Disponible | 102 400€ | Voir |