204 739€ (TVA 20%)
179 147€ (TVA 5%)
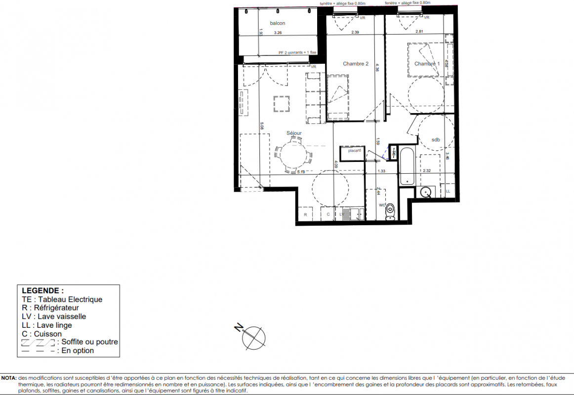
Appt. au 2ème
T3
61 m²
Nord-Est
Sotteville-lès-Rouen (76300)
2ème trimestre 2028
01 81 80 39 10
Présentation du programme "Louise Sainte-Martine"
Lancement commercial Soyez les premiers à choisir votre futur logement dans un cadre de vie privilégié, à deux pas de Rouen ! Située dans un quartier résidentiel, à seulement quelques minutes du centre de Rouen, cette nouvelle résidence à taille humaine propose 24 appartements neufs, du 2 au 4 pièces, conçus pour offrir un cadre de vie confortable, moderne et serein. Chaque logement bénéficie d'un agencement optimisé, de prestations de qualité et d'un espace extérieur privatif (balcon, terrasse et terrasse en attique), idéal pour profiter pleinement de l'environnement verdoyant. Elle bénéficie d'un emplacement stratégique : transports en commun à proximité immédiate, commerces, écoles, services et espaces verts accessibles à pied. Le Jardin des Plantes et les nombreuses pistes cyclables renforcent l'attrait d'un quartier à la fois dynamique et paisible. Profitez de la TVA réduite à 5,5 %, une opportunité rare pour devenir propriétaire dans un quartier en plein renouveau. Contactez nous dès aujourd'hui pour plus d'informations !
Pour toutes informations complémentaires, prenez contact avec nous !
Autres logements T3 du programme "Louise Sainte-Martine"
| Disponibilité | Prix | No | Genre | Pièces | Surface | Étage | Disponibilité | Prix | ||
|---|---|---|---|---|---|---|---|---|---|---|
| Voir | Disponible | 218 388€ | 1402 | Appt. | T3 | 58m2 | 4ème | Disponible | 218 388€ | Voir |
| Voir | Disponible | 221 801€ | 1205 | Appt. | T3 | 65m2 | 2ème | Disponible | 221 801€ | Voir |
| Voir | Disponible | 218 388€ | 1105 | Appt. | T3 | 65m2 | 1er | Disponible | 218 388€ | Voir |
| Voir | Disponible | 216 113€ | 1304 | Appt. | T3 | 63m2 | 3ème | Disponible | 216 113€ | Voir |
| Voir | Disponible | 219 526€ | 1303 | Appt. | T3 | 64m2 | 3ème | Disponible | 219 526€ | Voir |
| Voir | Disponible | 208 151€ | 1302 | Appt. | T3 | 61m2 | 3ème | Disponible | 208 151€ | Voir |
| Voir | Disponible | 212 701€ | 1204 | Appt. | T3 | 63m2 | 2ème | Disponible | 212 701€ | Voir |
| Voir | Disponible | 216 113€ | 1203 | Appt. | T3 | 64m2 | 2ème | Disponible | 216 113€ | Voir |
| Voir | Disponible | 209 288€ | 1104 | Appt. | T3 | 63m2 | 1er | Disponible | 209 288€ | Voir |
| Voir | Disponible | 212 701€ | 1103 | Appt. | T3 | 64m2 | 1er | Disponible | 212 701€ | Voir |
| Voir | Disponible | 195 526€ | 1102 | Appt. | T3 | 61m2 | 1er | Disponible | 195 526€ | Voir |