Prix
577 000€
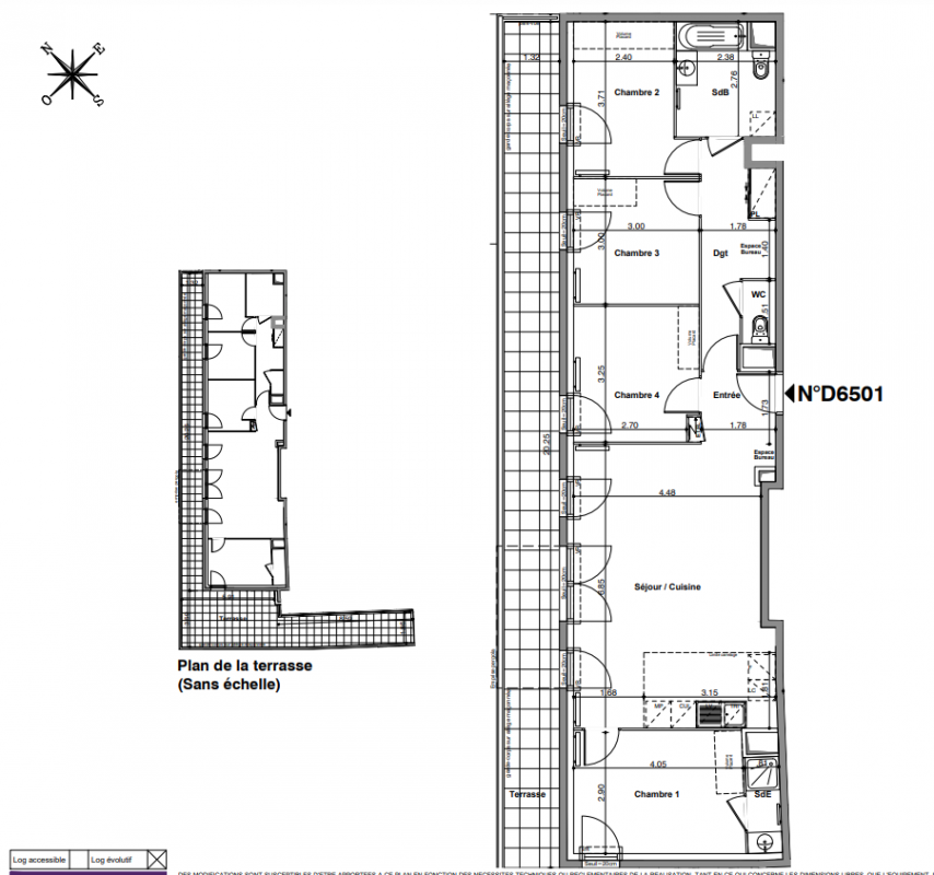
Type
Appt. au 5ème
Pièces
T5
Surface
91.17 m²
Exposition
Nord
Ville
Sartrouville (78500)
Livraison
3ème trimestre 2028
Informations
01 81 80 39 10

Présentation du programme "CARRE PASTEUR"

À 10 min de La Défense, au cœur de Sartrouville, cette nouvelle résidence Vianova vous invite à vivre l'équilibre parfait entre raffinement architectural et art de vivre. Implantée dans un quartier pavillonnaire proche des commerces, elle séduit par son style inspiré du patrimoine francilien, ses matériaux nobles et ses lignes harmonieuses. Du studio au 5 pièces, les appartements offrent de généreux volumes baignés de lumière, prolongés de balcons ou de terrasses. Un cadre recherché, à proximité des écoles, des berges de Seine et de tous les transports.
Éligible au dispositif Vianova Access, la résidence permet de devenir propriétaire avec un apport minimum et des mensualités équivalentes à un loyer.

Autres logements T5 du programme "CARRE PASTEUR"

Disponibilité Prix Genre Pièces Surface Étage
Voir
Disponible
598 000€ Appt. T5 101.7m2 5ème
DO NOT CLICK