Prix
467 147€
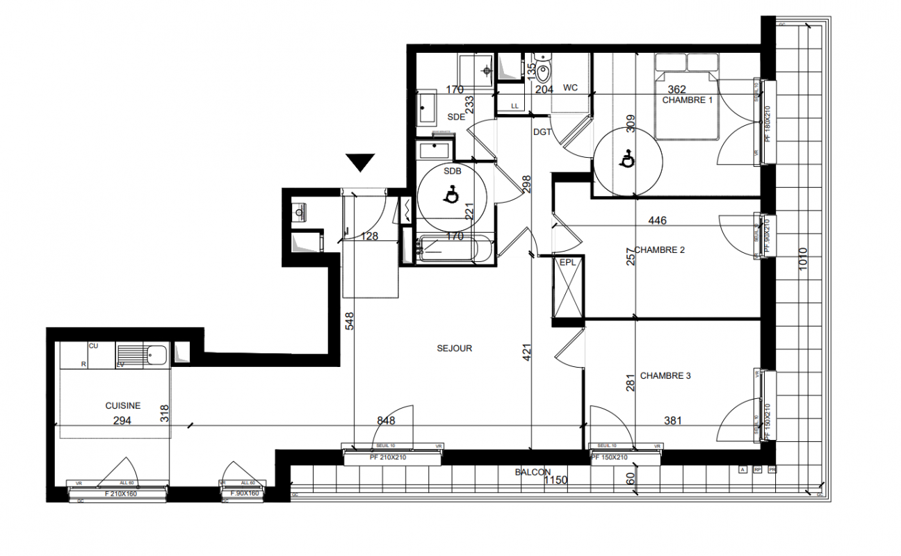
Type
Appt. au 2ème
Pièces
T4
Surface
87.72 m²
Exposition
-
Ville
Poissy (78300)
Livraison
4ème trimestre 2028
Informations
01 81 80 39 10

Présentation du programme "LISIERE DES LOGES"

GRAND LANCEMENT LE 25 AVRIL ! Frais de Notaire offerts + Remise de 3 000 euros par pièce *

À Poissy, au 10-12 avenue de Pontoise, découvrez Lisière des Loges, un programme immobilier neuf en TVA 5,5 %, offrant une réelle opportunité d'accession à la propriété à proximité de Paris. Cette résidence à taille humaine propose 30 logements du 2 au 4 pièces avec 45 places de stationnement sécurisées et un grand local à vélo, un confort rare sur le secteur.

Les appartements, majoritairement des 3 pièces adaptés à la vie familiale, bénéficient pour la plupart de doubles orientations, favorisant la luminosité naturelle tout au long de la journée. Certains logements profitent de vues dégagées sur des espaces verts (stade), sans vis-à-vis direct.

Un emplacement pratique et connecté : Gare de Poissy (RER A et Transilien J) permettant de rejoindre Paris et La Défense - Accès rapide aux axes A13 / A14 - Arrêt de Bus à 2 minutes à pied - Commerces de proximité accessibles à pied (boucherie, épicerie, supermarché...).

Un quotidien facilité : Écoles, collèges et lycées à proximité - Équipements sportifs immédiats (stade, tennis, piscine) - Proximité de la forêt de Saint-Germain-en-Laye.

Des prestations fonctionnelles : Résidence sécurisée (digicode, vidéophone) - Stationnement en sous-sol et en rez-de-chaussée - Local à vélos avec accès indépendant - Construction conforme à la RE2020.

Grâce à la TVA réduite et aux frais de notaire offerts pour les 5 premiers réservataires, ce programme constitue une solution idéale pour un premier achat ou un investissement en Île-de-France.

Contactez-nous dès maintenant au 01 87 522 522 pour plus d'informations et étudier votre projet immobilier.

Autres logements T4 du programme "LISIERE DES LOGES"

Disponibilité Prix Genre Pièces Surface Étage
Voir
Disponible
472 948€ Appt. T4 87.72m2 3ème
Voir
Disponible
484 550€ Appt. T4 87.72m2 4ème
Voir
Disponible
523 905€ Appt. T4 89.18m2 5ème
DO NOT CLICK