Ce lot n’est plus disponible chez VIANOVA ou est vendu.
Vous pouvez revenir dans 24h pour vérifier le stock à jour ou contacter un conseiller Vianova pour vérifier le stock en direct.
Vous pouvez également continuer votre recherche sur notre site « ici ».
247 000€ (TVA 20%)
217 154€ (TVA 5.5%)
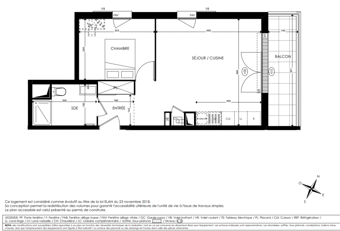
Appt. au 3ème
T2
44.61 m²
Nord
Villeneuve-Saint-Georges (94190)
1er trimestre 2027
01 81 80 39 10
Présentation du programme "Seinographic"
À 20 min* de Paris, une adresse pratique en bord de SeineCette nouvelle adresse à Villeneuve-Saint-Georges réunit les atouts d’un placement à fort potentiel, éligible au dispositif Pinel (zone A). La résidence se situe à 5 min* à pied de la gare de RER D Villeneuve Triage, permettant de rejoindre Paris gare de Lyon en 16 min**, Châtelet-les Halles en 21 min**. Les grands bassins d’emplois de l’aéroport d’Orly et de Rungis sont accessibles en une vingtaine de minutes, tout comme les grands pôles universitaires, hospitaliers et administratifs de Créteil. En pleine restructuration, le quartier Triage voit se métamorphoser l’avenue de Choisy en une voie embellie, verdoyante reliant les petites rues à l’esprit village et les bords de Seine réaménagés. L’amélioration du cadre de vie s’accompagne de nouveaux équipements, dont un groupe scolaire et une crèche. Une attractivité grandissante synonyme de forte demande locative et de belles perspectives de valorisation. Coiffées de belles toitures en zinc, les façades affirment un style contemporain avec leurs tons contrastés et leurs jeux de décrochés mettant en scène de généreux balcons et terrasses. Ouverts sur l’extérieur, les appartements se déclinent du studio au 4 pièces et incarnent tout le savoir-faire Kaufman & Broad en matière d’habitabilité et de confort. * Source : Google Maps
Autres logements T2 du programme "Seinographic"
| Disponibilité | Prix | No | Genre | Pièces | Surface | Étage | Disponibilité | Prix | ||
|---|---|---|---|---|---|---|---|---|---|---|
| Voir | Disponible | 230 000€ | 104 | Appt. | T2 | 40.97m2 | 1er | Disponible | 230 000€ | Voir |
| Voir | Disponible | 239 000€ | 407 | Appt. | T2 | 40.72m2 | 4ème | Disponible | 239 000€ | Voir |
| Voir | Disponible | 245 000€ | 607 | Appt. | T2 | 40.97m2 | 6ème | Disponible | 245 000€ | Voir |
| Voir | Disponible | 249 000€ | 402 | Appt. | T2 | 44.61m2 | 4ème | Disponible | 249 000€ | Voir |
| Voir | Disponible | 249 000€ | 502 | Appt. | T2 | 41.95m2 | 5ème | Disponible | 249 000€ | Voir |
| Voir | Disponible | 237 000€ | 609 | Appt. | T2 | 40.63m2 | 6ème | Disponible | 237 000€ | Voir |
| Voir | Disponible | 247 000€ | 609B | Appt. | T2 | 36.84m2 | 6ème | Disponible | 247 000€ | Voir |