Ce lot n’est plus disponible chez VIANOVA ou est vendu.

Vous pouvez revenir dans 24h pour vérifier le stock à jour ou contacter un conseiller Vianova pour vérifier le stock en direct.
Vous pouvez également continuer votre recherche sur notre site « ici ».

Prix
175 000€
Type
Appt. au 1er
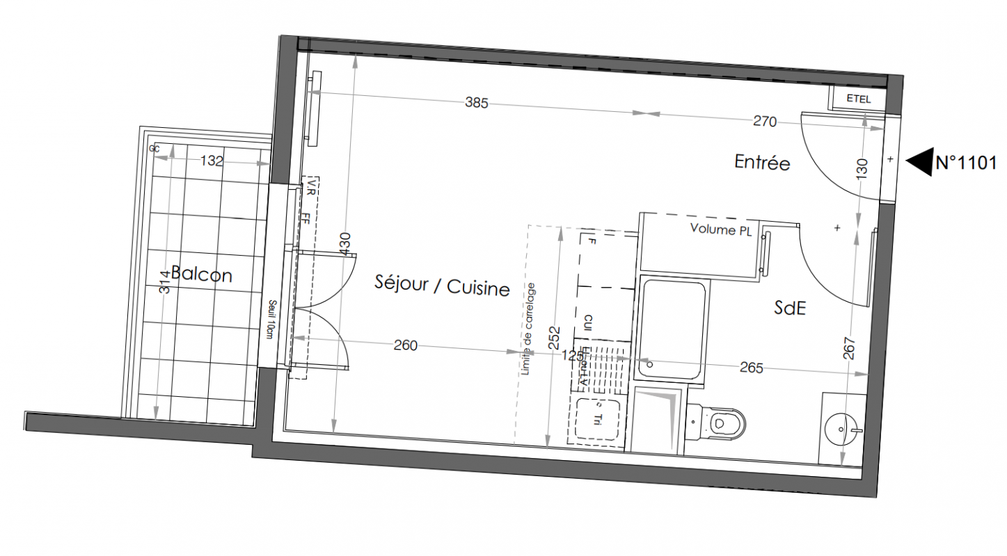
Pièces
Studio
Surface
27.16 m²
Exposition
Sud
Ville
Méry-sur-Oise (95540)
Livraison
4ème trimestre 2027
Informations
01 81 80 39 10

Présentation du programme "RESIDENCE MADRIA"

À Méry-sur-Oise, avec Vianova ACCESS pour la 1ère fois vous pouvez devenir propriétaire de votre appartement neuf !

Entre ancrage historique et pleine nature, découvrez une adresse à l’art de vivre parfait, au cœur d’une commune paisible des rives de l’Oise. À seulement 350 mètres de la gare et 40 minutes de Paris, votre résidence neuve marie avec finesse pierre meulière authentique et prestations contemporaines.

Son généreux domaine paysager s’articule autour d’un espace boisé classé et de vastes jardins partagés, au cœur de l’espace. Huit maisons familiales avec jardins privatifs et des appartements modulables du studio au 4 pièces offrent des espaces de vie pensés pour votre bien-être. Orientations traversantes, terrasses généreuses, suite parentale ou plan modulable: trouvez l’intérieur qui vous ressemble. L'environnement privilégié conjugue praticité urbaine et sérénité champêtre, avec commerces, école et parc du Château accessibles à pied.

Autres logements Studio du programme "RESIDENCE MADRIA"

Disponibilité Prix Genre Pièces Surface Étage
Voir
Disponible
179 000€ Appt. Studio 27.16m2 2ème