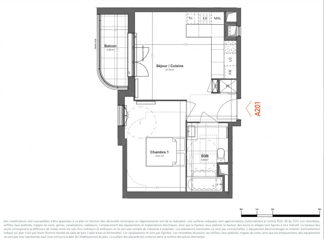
Prix
255 560€
Type
Appt. au 2ème
Pièces
T2
Surface
40 m²
Exposition
-
Ville
Bezons (95870)
Livraison
4ème trimestre 2027
Informations
01 81 80 39 10

Présentation du programme "LES JARDINS DE NEIL"

Une adresse d’avenir, parfaitement intégrée au dynamisme urbain, dans un secteur résidentiel. « LES JARDINS DE NEIL» ouvre ses portes à proximité de commerces, d’écoles tous niveaux et d’installations sportives et culturelles.

Cette résidence est idéale pour vous constituer un patrimoine immobilier de qualité. Situées dans le Val-d’Oise, les communes de Bezons et Argenteuil affichent une belle vitalité économique et sont connectées au Grand Paris. Les résidents pourront facilement rejoindre la capitale et le quartier d’affaires de La Défense.

Elle présente un plan végétalisé et une architecture moderne épurée. Ses appartements, déclinés du studio au 4 pièces, et ses maisons 4 pièces bénéficient tous d’un espace extérieur.

Autres logements T2 du programme "LES JARDINS DE NEIL"

Pas de logements disponibles
DO NOT CLICK