304 000€ (TVA 20%)
267 267€ (TVA 5.5%)
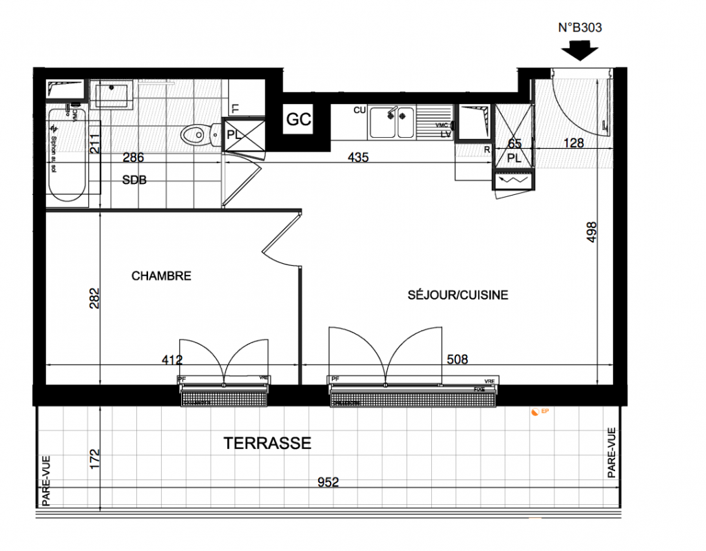
Appt. au 3ème
T2
42 m²
Sud
Neuilly-Plaisance (93360)
2ème trimestre 2028
01 81 80 39 10
Présentation du programme "Plaisancia"
Devenez enfin propriétaire grâce à la TVA réduite ! Découvrez nos appartements du studio au 5 pièces avec des espaces extérieurs exceptionnels aux derniers niveaux ! Une résidence qui bénéficie d'un emplacement de qualité aux portes de Paris, à proximité du RER A et du futur métro ligne 15 et qui profite des commerces de la rue Maréchal Foch, accessibles à seulement 5 minutes à pied. Entre ambiance résidentielle et qualité de vie, Neuilly-Plaisance séduit par son atmosphère pavillonnaire, ses espaces verts généreux et ses nombreux équipements : cinéma, théâtre, piscine, bibliothèque, mais aussi de vastes lieux de promenade comme le parc des Côteaux d'Avron ou les bords de Marne. Une opportunité à ne pas manquer pour devenir propriétaire dans une commune dynamique et agréable. * Voir conditions sur notre site internet. Pour toutes informations complémentaires, prenez contact avec nous !
Autres logements T2 du programme "Plaisancia"
| Disponibilité | Prix | No | Genre | Pièces | Surface | Étage | Disponibilité | Prix | ||
|---|---|---|---|---|---|---|---|---|---|---|
| Voir | Optionné | 244 000€ | 2002 | Appt. | T2 | 39m2 | 0-RDC | Optionné Mais pas encore vendu 😉 | 244 000€ | Voir |
| Voir | Disponible | 280 999€ | 1101 | Appt. | T2 | 43m2 | 1er | Disponible | 280 999€ | Voir |
| Voir | Disponible | 273 000€ | 1204 | Appt. | T2 | 39m2 | 2ème | Disponible | 273 000€ | Voir |
| Voir | Disponible | 289 000€ | 1201 | Appt. | T2 | 43m2 | 2ème | Disponible | 289 000€ | Voir |
| Voir | Disponible | 273 000€ | 2104 | Appt. | T2 | 41m2 | 1er | Disponible | 273 000€ | Voir |
| Voir | Optionné | 280 000€ | 2204 | Appt. | T2 | 41m2 | 2ème | Optionné Mais pas encore vendu 😉 | 280 000€ | Voir |
| Voir | Optionné | 271 999€ | 2105 | Appt. | T2 | 41m2 | 1er | Optionné Mais pas encore vendu 😉 | 271 999€ | Voir |
| Voir | Disponible | 274 000€ | 2203 | Appt. | T2 | 40m2 | 2ème | Disponible | 274 000€ | Voir |
| Voir | Disponible | 277 999€ | 3101 | Appt. | T2 | 40m2 | 1er | Disponible | 277 999€ | Voir |
| Voir | Disponible | 280 000€ | 3107 | Appt. | T2 | 41m2 | 1er | Disponible | 280 000€ | Voir |
| Voir | Disponible | 274 999€ | 3102 | Appt. | T2 | 40m2 | 1er | Disponible | 274 999€ | Voir |
| Voir | Disponible | 285 000€ | 3201 | Appt. | T2 | 40m2 | 2ème | Disponible | 285 000€ | Voir |
| Voir | Disponible | 280 000€ | 3108 | Appt. | T2 | 41m2 | 1er | Disponible | 280 000€ | Voir |
| Voir | Disponible | 295 999€ | 1301 | Appt. | T2 | 43m2 | 3ème | Disponible | 295 999€ | Voir |
| Voir | Disponible | 288 000€ | 3207 | Appt. | T2 | 41m2 | 2ème | Disponible | 288 000€ | Voir |
| Voir | Disponible | 312 000€ | 3301 | Appt. | T2 | 42m2 | 3ème | Disponible | 312 000€ | Voir |
| Voir | Disponible | 282 000€ | 3202 | Appt. | T2 | 40m2 | 2ème | Disponible | 282 000€ | Voir |
| Voir | Disponible | 288 000€ | 3208 | Appt. | T2 | 41m2 | 2ème | Disponible | 288 000€ | Voir |