Ce lot n’est plus disponible chez VIANOVA ou est vendu.

Vous pouvez revenir dans 24h pour vérifier le stock à jour ou contacter un conseiller Vianova pour vérifier le stock en direct.
Vous pouvez également continuer votre recherche sur notre site « ici ».

Prix
215 000€  (TVA 20%)
197 083€  (TVA 10%)
Type
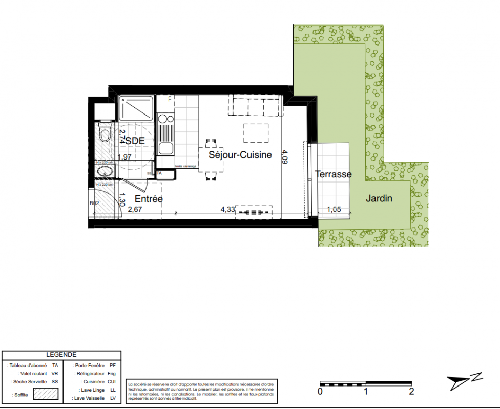
Appt. au 0-RDC
Pièces
Studio
Surface
27.14 m²
Exposition
-
Ville
Neuilly-Plaisance (93360)
Livraison
1er trimestre 2028
Informations
01 81 80 39 10

Présentation du programme "Iris"

Découvrez la nouvelle résidence Iris portée par Vianova, entre sérénité et vitalité urbaine à 25 min de Paris* !

- Appartements du studio au 3 pièces
- Surfaces généreuses prolongées d'une terrasse‐jardin ou d'un balcon
- Résidence intimiste de 3 niveaux
- Architecture cossue aux matériaux nobles et pérennes
- Adresse résidentielle et centrale
- Emplacement proche des commerces et services du quotidien et de structures culturelles, sportives, de loisir, éducatives, de santé...
- Bus à 1 min, RER A à 12 min à pied*


À l'occasion du lancement commercial, bénéficiez de nos offres exclusives**!
Inscrivez‐vous en avant‐première pour être informé du lancement commercial des 21 et 22 juin 2025.

Autres logements Studio du programme "Iris"

Disponibilité Prix Genre Pièces Surface Étage
Voir
Disponible
231 000€ Appt. Studio 29.42m2 3ème
Voir
Disponible
214 000€ Appt. Studio 31.91m2 0-RDC