410 000€
Appt. au 1er
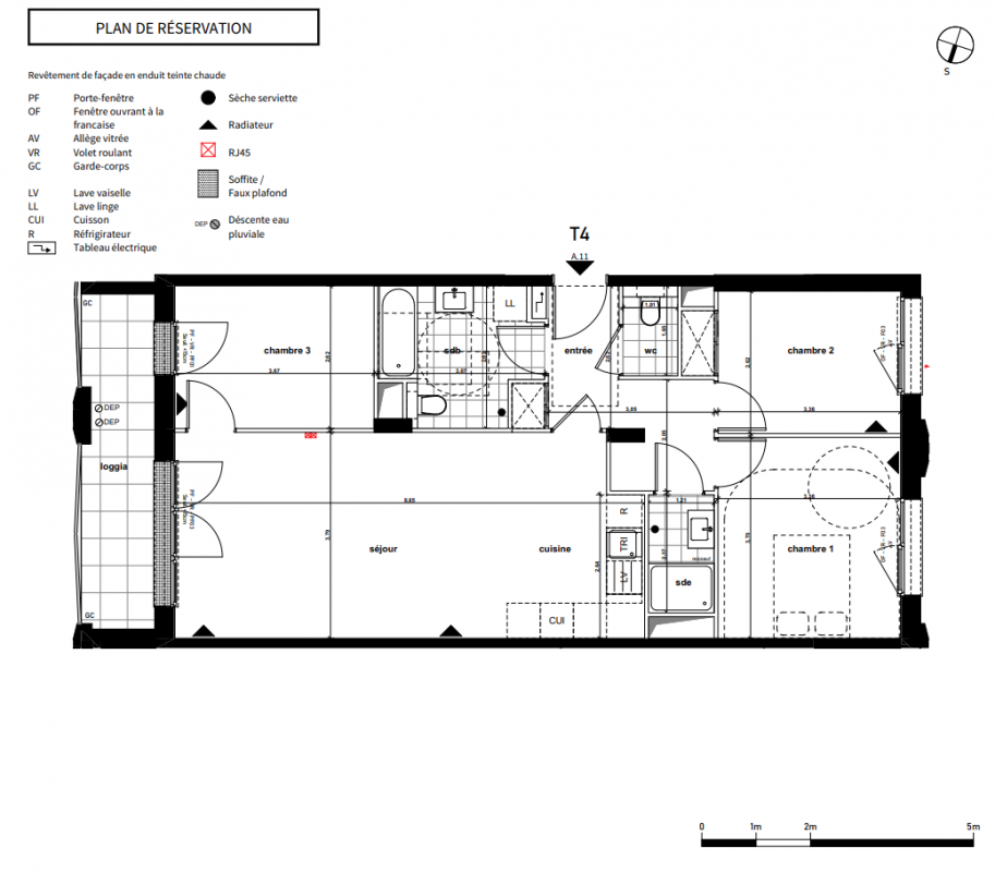
T4
81.9 m²
-
Aubervilliers (93300)
1er trimestre 2028
01 81 80 39 10
Présentation du programme "CARACTÈRE"
[ OFFRE EXCLUSIVE* ] // AUBERVILLIERS – Devenez propriétaire de votre résidence principale à un prix inférieur au marché grâce au dispositif ANRU, permettant de bénéficier d’une TVA à 5,5 %. Profitez également d’une offre exclusive comprenant les frais de notaire offerts et 2 000 € de remise par pièce.
La résidence CARACTÈRE bénéficie d’un emplacement privilégié, en retrait de la rue, dans un environnement où tout est accessible à pied et où les aménagements paysagers contribuent pleinement au bien-être quotidien. Elle propose des appartements confortables du studio au 5 pièces duplex, dotés de grands espaces extérieurs et de vues dégagées, au sein d’une architecture contemporaine aux teintes sable.
À quelques pas de Paris, Aubervilliers poursuit sa transformation, renforçant son attractivité résidentielle.
L’arrivée de nouvelles lignes de métro, la future gare du Grand Paris Express, le Campus Condorcet — l’un des principaux pôles européens de recherche en sciences humaines et sociales — participent à l’amélioration durable de l’accessibilité du territoire. Après le réaménagement des berges du canal Saint-Denis et du cœur de ville, le Fort d’Aubervilliers est à son tour en plein renouveau, offrant une qualité de vie urbaine et familiale entre arts, sport et nature.
*Prix affichés en TVA 5,5 %. Voir les conditions sur la page Mentions légales de notre site Vianova.fr.
Vous avez plutôt un projet d’investissement locatif ? Le dispositif LMNP est également possible.
Contactez nos conseillers Lamotte à PARIS ou rendez-vous sur LAMOTTE.FR pour en savoir plus.
Autres logements T4 du programme "CARACTÈRE"
| Disponibilité | Prix | No | Genre | Pièces | Surface | Étage | Disponibilité | Prix | ||
|---|---|---|---|---|---|---|---|---|---|---|
| Voir | Disponible | 422 000€ | A21 | Appt. | T4 | 82.2m2 | 2ème | Disponible | 422 000€ | Voir |
| Voir | Disponible | 426 000€ | A31 | Appt. | T4 | 82.2m2 | 3ème | Disponible | 426 000€ | Voir |
| Voir | Disponible | 431 000€ | A41 | Appt. | T4 | 82.2m2 | 4ème | Disponible | 431 000€ | Voir |
| Voir | Disponible | 483 000€ | A51 | Appt. | T4 | 82.2m2 | 5ème | Disponible | 483 000€ | Voir |
| Voir | Disponible | 438 000€ | A61 | Appt. | T4 | 82.2m2 | 6ème | Disponible | 438 000€ | Voir |
| Voir | Disponible | 443 000€ | A71 | Appt. | T4 | 82.2m2 | 7ème | Disponible | 443 000€ | Voir |
| Voir | Disponible | 446 000€ | A81 | Appt. | T4 | 82.2m2 | 8ème | Disponible | 446 000€ | Voir |
| Voir | Disponible | 451 000€ | A91 | Appt. | T4 | 82.2m2 | 9ème | Disponible | 451 000€ | Voir |