Prix
195 900€
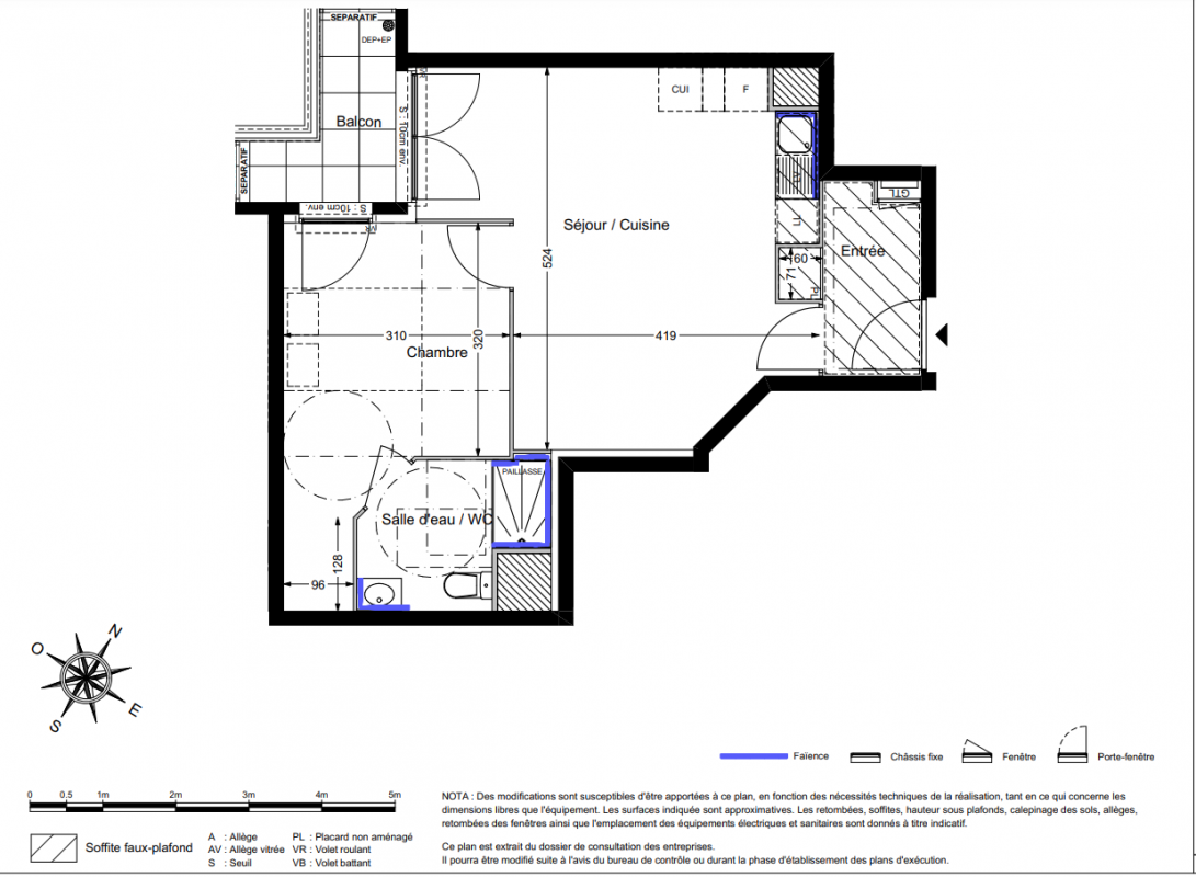
Type
Appt. au 4ème
Pièces
-
Surface
43.27 m²
Exposition
-
Ville
Savigny-le-Temple (77176)
Livraison
4ème trimestre 2025
Informations
01 81 80 39 10

Présentation du programme "VUE LAC"

En bordure de la forêt de Rougeau, la commune de Savigny-le-Temple profite d'un très bel environnement naturel, entre bois et étangs, golfs et allées cavalières, parcs urbains et fermes pédagogiques. Sa situation géographique stratégique aux carrefours de deux pôles économiques majeurs, la proximité de l'autoroute A5 et de la Francilienne ainsi que son bon réseau de transports en commun en font l'une des villes les plus importantes du Grand Paris Sud. Au quotidien, les Savigniens profite, dans un cadre de vie agréable, de nombreuses écoles, de la maternelle au lycée, de commerces, d'une offre culturelle et sportive de qualité, de deux marchés de produits frais et des centres commerciaux « Westfield Carré Sénart » et « Bois Sénart » des communes voisines. Au coeur d'un quartier en plein renouveau, à quelques pas de nombreux commerces, d'écoles, d'un stade, d'une école de danse et du superbe domaine verdoyant de la Grange-la-Prévôté, nous vous invitons à découvrir une nouvelle réalisation à l'architecture contemporaine novatrice. Idéalement tournée vers la nature environnante et le lac aux berges arborées, elle propose des appartements du studio au 4 pièces, dont des duplex, prolongés pour la plupart par des balcons, des terrasses plein-ciel et des jardins privatifs. Des places de stationnement en sous-sol et des prestations de qualité complètent avantageusement l'offre de cette superbe résidence sécurisée.

Autres logements - du programme "VUE LAC"

Pas de logements disponibles
DO NOT CLICK