351 000€
Appt. au 2ème
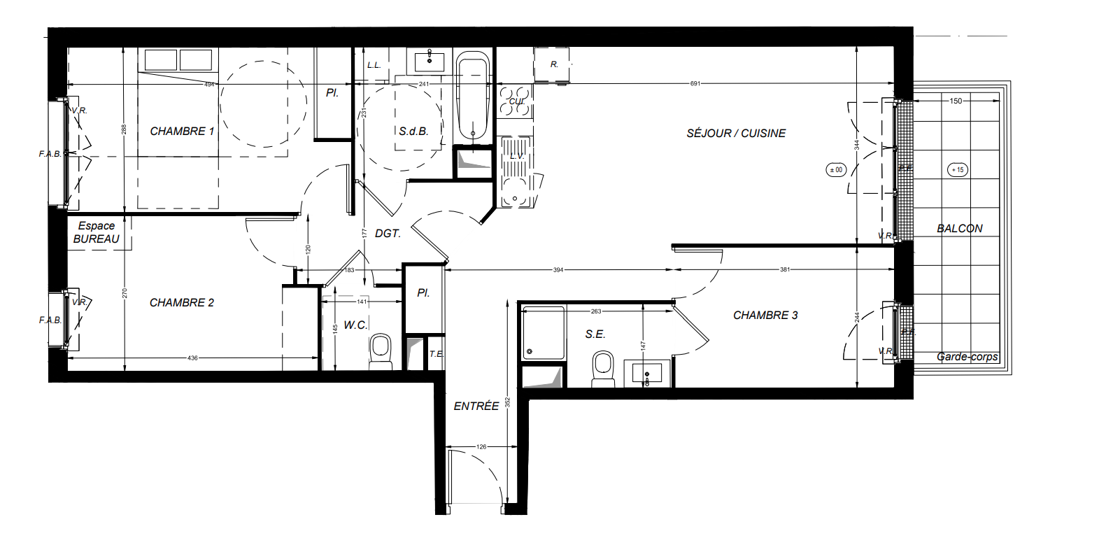
T4
82.67 m²
Est
Ozoir-la-Ferrière (77330)
3ème trimestre 2028
01 81 80 39 10
Présentation du programme "Les Terrasses du 105"
Au cœur d’Ozoir, une résidence élégante idéalement située
Entre Marne-la-Vallée et Paris, une adresse stratégique À l’est de Paris, Ozoir-la-Ferrière s’impose comme une adresse stratégique aux atouts solides. À seulement 20 minutes* de Marne-la-Vallée et une trentaine de minutes* de la capitale et de Créteil, la ville conjugue l’énergie des grands pôles franciliens avec un environnement verdoyant privilégié, bordé de forêts et d’espaces naturels.A deux pas du centre-ville cette nouvelle résidence bénéficie d’une excellente desserte : le RER E relie directement Paris en moins de 40 minutes. Les axes routiers majeurs (N4, A4, N104) facilitent les déplacements vers les pôles d’emploi de Marne-la-Vallée, du Val d’Europe, ainsi que vers l’aéroport Roissy-CDG.Cette accessibilité, alliée à un cadre de vie très recherché, attire étudiants, jeunes actifs et familles, assurant un fort potentiel locatif et une valorisation patrimoniale durable.* Source : Google Maps