292 000€
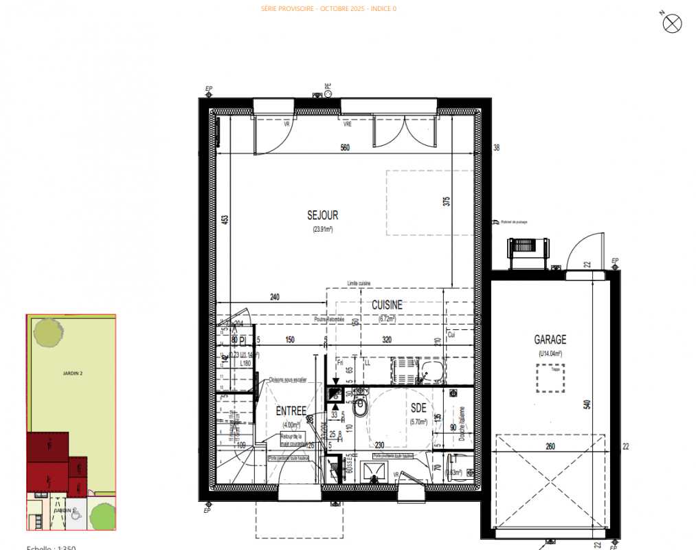
Maison au 0-RDC
T4
81.6 m²
-
La Chapelle-la-Reine (77760)
1er trimestre 2027
01 81 80 39 10
Présentation du programme "LE DOMAINE DE CASTILLE"
NOUVEAU À LA CHAPELLE-LA-REINE, JUSQU'À 20 000 € DE REMISE POUR LES 10 PREMIERS RESERVATAIRES* !
(Les prix affichés comprennent l'offre de remise)
VOTRE APPARTEMENT-BALCON 3 PIECES À PARTIR DE 806,25 € /MOIS*.
Grâce au Prêt à Taux Zéro* en zone B1, augmentez votre capacité
d’achat en bénéficiant d’un emprunt à taux 0 %.
A 15 min** en voiture de Fontainebleau et Nemours, La Chapelle-la-Reine est une petite ville dynamique entourée de nature, à proximité immédiate de la célèbre forêt de Fontainebleau. Ce cadre semi-rural mais parfaitement équipé constitue un choix idéal pour celles et ceux en quête d’un cadre de vie équilibré, alliant proximité avec la nature et accès rapide aux bassins d’emplois de de Fontainebleau, Nemours ou Le Malesherbois. Il est possible de rejoindre Paris en 1 heure** via l’autoroute A6 ou 45 min** par la ligne R depuis la gare de Fontainebleau-Avon.
DES LIEUX DE VIE POUR TOUS LES STYLES DE VIE
Situé rue de Villionne, « LE DOMAINE DE CASTILLE » propose 12 appartements-balcons et 20 appartements-jardins de 2 et 3 pièces de 40 à 70 m2, ainsi que 35 maisons individuelles de 4 et 5 pièces, allant de 81 à 101 m2. Toutes les maisons disposent de jardins privatifs. Des places de stationnement sont prévues pour chaque logement, assurant praticité au quotidien.
Forte de son expérience de plus de 50 ans, European Homes est précurseur de la maison en village « prête à vivre » et du concept unique des Appartements-Jardin « à vivre comme dans une maison ». À mi-chemin entre l’habitat individuel et collectif, ces appartements, de plain-pied ou en duplex, s’ouvrent sur un balcon ou un jardin privatif arboré et clôturé tout en offrant un voisinage limité. Idéal pour un premier achat ou pour les séniors souhaitant retrouver le confort de l’appartement, ce concept évolutif s’adapte aux différents moments de la vie.
EN CŒUR DE VILLE, DES COMMODITÉS À PORTÉE DE MAIN
Implanté dans un quartier résidentiel vert et paisible, le programme bénéficie de la proximité directe des établissements scolaires, de la crèche au collège accessibles à 300 m à pied**, facilitant la vie des jeunes parents. Les lycées sont également facilement atteignables à moins de 20 minutes via la ligne de bus 3451** ou à 15 minutes en voiture**.
Le centre-ville et ses commerces de proximité (boulangerie, pharmacie, boucherie, restaurants, marché…) se trouvent à seulement 4 minutes** à pied. Pour une vie locale dynamique et conviviale, les résidents profitent à moins de 10 mi

