710 000€
Appt. au 0-RDC
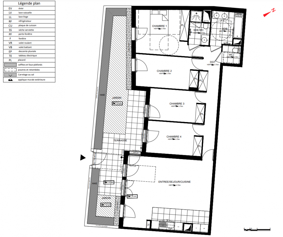
T5
105.37 m²
-
Rueil-Malmaison (92500)
1er trimestre 2024
01 81 80 39 10
Présentation du programme "RUEIL MALMAISON"
FRAIS DE NOTAIRES REDUITS
APPARTEMENTS DEJA LIVRES,
FIscalement Neuf (vente par une société dans les 5 ans de la livraison)
Livraison T4 2023
visitables
Actable immédiatement (promesse de vente )
honoraires 3.5% HT (compris dans le PV
toutes les clefs sont dans le lot B048 au RC accessible par jardin/portillon du Batiment C
POUR LES VISITES, DEMANDER LA CLEF A MIREILLE MAES A PRENDRE A BOULOGNE ET A RAPPORTER
les appartements sont en "revente dans les 5 ans) donc Frais de Notaires réduits, nous attendons confirmation
de la possibilité de bénéficier du PTZ pour les appartements qui n'ont pas été occupés.
les parkings sont vendus séparément
18000e le PK simple
25000€ le parking double
plus de renseignement ?
Mireille MAES OHAYON 0609457273
Autres logements T5 du programme "RUEIL MALMAISON"
| Disponibilité | Prix | No | Genre | Pièces | Surface | Étage | Disponibilité | Prix | ||
|---|---|---|---|---|---|---|---|---|---|---|
| Voir | Disponible | 740 000€ | C156 | Appt. | T5 | 102.49m2 | 1er | Disponible | 740 000€ | Voir |
| Voir | Disponible | 790 000€ | C458 | Appt. | T5 | 105.42m2 | 4ème | Disponible | 790 000€ | Voir |
| Voir | Disponible | 768 000€ | C158 | Appt. | T5 | 105.82m2 | 1er | Disponible | 768 000€ | Voir |
| Voir | Disponible | 780 000€ | C358 | Appt. | T5 | 105.82m2 | 3ème | Disponible | 780 000€ | Voir |