290 000€
Appt. au 0-RDC
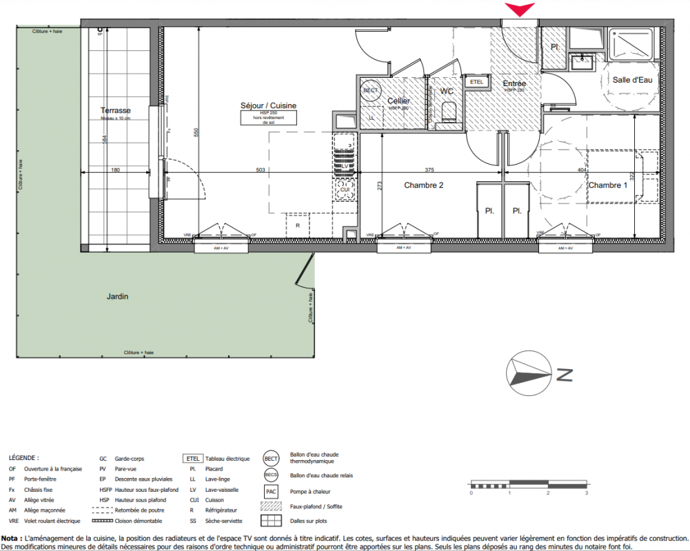
T3
67.52 m²
-
Séné (56860)
1er trimestre 2028
01 81 80 39 10
Présentation du programme "ÉCHO"
[ LANCEMENT AUX PORTES DE VANNES ] Profitez de notre OFFRE DE LANCEMENT : FRAIS DE NOTAIRE OFFERTS sur les 5 premières réservations* !
À Séné, une résidence d'appartements neufs s’implante route du Versa, au sein d’un environnement résidentiel déjà aménagé. Cette adresse bénéficie d’une situation pratique, à proximité immédiate de la zone commerciale du Poulfanc, d’écoles et des transports en commun, avec une ligne de bus accessible à quelques minutes à pied reliant le centre de Vannes en environ 15 minutes. La gare de Vannes se situe à une dizaine de minutes en voiture, tandis que les axes routiers permettent un accès rapide vers Rennes, Nantes, Lorient et Quimper.
La résidence ÉCHO se compose d’un petit collectif de seulement 23 appartements du 2 au 4 pièces, répartis dans un bâtiment à taille humaine, en cohérence avec le quartier environnant.
Chaque logement bénéficie d’un espace extérieur privatif – jardin, balcon, loggia ou terrasse – prolongeant les espaces de vie. L’architecture contemporaine associe des enduits clairs, des garde-corps en bois, des menuiseries gris anthracite, apportant une écriture sobre et qualitative à l’ensemble.
Les prestations intérieures offrent un niveau de confort et de fonctionnalité adapté aux usages actuels.
SPÉCIAL INVESTISSEURS – Profitez du nouveau Dispositif JEANBRUN : optimisez votre fiscalité et accélérez votre patrimoine.
À seulement 15 minutes des plages et 10 minutes du centre-ville de Vannes, la résidence ÉCHO propose un cadre de vie équilibré entre littoral, dynamisme urbain et quotidien facilité.
Contactez nos conseillers Lamotte à Vannes ou rendez-vous sur Vianova.fr pour en savoir plus.
*Voir conditions de l'offre sur notre site Lamotte.fr
Autres logements T3 du programme "ÉCHO"
| Disponibilité | Prix | No | Genre | Pièces | Surface | Étage | Disponibilité | Prix | ||
|---|---|---|---|---|---|---|---|---|---|---|
| Voir | Disponible | 287 000€ | B002 | Appt. | T3 | 62.79m2 | 0-RDC | Disponible | 287 000€ | Voir |
| Voir | Disponible | 284 000€ | B003 | Appt. | T3 | 61.6m2 | 0-RDC | Disponible | 284 000€ | Voir |
| Voir | Disponible | 277 000€ | B005 | Appt. | T3 | 59.49m2 Le bon plan | 0-RDC | Disponible | 277 000€ | Voir |
| Voir | Disponible | 283 000€ | B008 | Appt. | T3 | 58.98m2 | 0-RDC | Disponible | 283 000€ | Voir |
| Voir | Disponible | 299 000€ | B009 | Appt. | T3 | 66.77m2 | 0-RDC | Disponible | 299 000€ | Voir |
| Voir | Disponible | 295 000€ | B103 | Appt. | T3 | 62.79m2 | 1er | Disponible | 295 000€ | Voir |
| Voir | Disponible | 292 000€ | B104 | Appt. | T3 | 61.6m2 | 1er | Disponible | 292 000€ | Voir |
| Voir | Disponible | 282 000€ | B106 | Appt. | T3 | 59.48m2 | 1er | Disponible | 282 000€ | Voir |
| Voir | Disponible | 288 000€ | B109 | Appt. | T3 | 58.69m2 | 1er | Disponible | 288 000€ | Voir |
| Voir | Disponible | 307 000€ | B110 | Appt. | T3 | 66.77m2 | 1er | Disponible | 307 000€ | Voir |
| Voir | Disponible | 295 000€ | B202 | Appt. | T3 | 60.94m2 | 2ème | Disponible | 295 000€ | Voir |