370 000€
Maison au 0-RDC
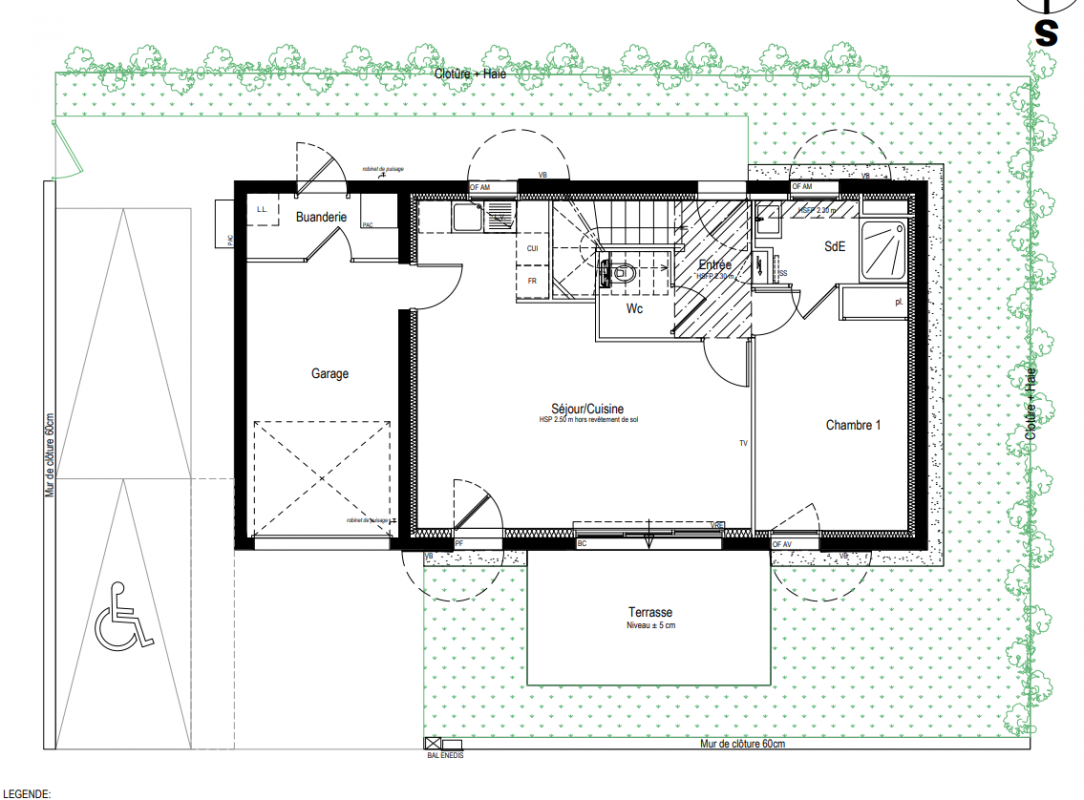
T4
86.92 m²
-
Erdeven (56410)
1er trimestre 2026
01 81 80 39 10
Présentation du programme "FLEUR OCEAN - MAISONS"
[ - LIVRAISON IMMINENTE - ] DERNIÈRES MAISONS 4 PIÈCES À ERDEVEN
Maison décorée à visiter sur rendez-vous !
INVESTIR OU DEVENIR PROPRIETAIRE : PROFITEZ DES AVANTAGES !
Ce programme immobilier est éligible à la loi “Jeanbrun” et cumulable avec le dispositif LLI (achat en TVA à 10 % et crédit d’impôt de taxe foncière). Maximisez votre investissement avec une étude fiscale personnalisée. Les conseillers Lamotte vous accompagnent dans la création et l’optimisation de votre patrimoine.
Envie de devenir propriétaire de votre résidence principale, bénéficier de toutes les garanties du neuf et du Prêt à Taux Zéro (PTZ) ? Optimisez votre financement et votre capacité d’emprunt en prenant rendez-vous.
Choisir le neuf, c’est profiter de frais de notaire réduits. Un avantage supplémentaire dans le cadre d'une acquisition en résidence principale comme pour un investissement patrimonial.
À Erdeven, dans un environnement calme et privilégié du littoral morbihannais, découvrez les 4 dernières maisons disponibles de cette résidence intimiste.
Modernes, spacieuses et fonctionnelles, ces maisons 4 pièces ont été pensées pour offrir un cadre de vie confortable au quotidien. Elles disposent de 3 chambres, dont une suite parentale en rez-de-chaussée, d’un garage privatif et de stationnements extérieurs.
Chaque maison bénéficie également d’un bel espace extérieur, idéal pour profiter pleinement des beaux jours, dans un cadre de vie agréable, à proximité des commerces, des écoles, des équipements sportifs et des plages accessibles en quelques minutes à vélo.
La maison décorée est à visiter sur rendez-vous, afin de vous projeter concrètement dans votre futur lieu de vie et découvrir la qualité des prestations proposées.
Que vous envisagiez une résidence principale, une installation familiale ou un projet de retraite au calme, ces dernières opportunités réunissent tous les avantages du neuf : confort, praticité, garanties et maîtrise de votre budget.
Contactez nos conseillers Lamotte à Vannes pour organiser votre visite et découvrir les dernières maisons disponibles.
Autres logements T4 du programme "FLEUR OCEAN - MAISONS"
| Disponibilité | Prix | No | Genre | Pièces | Surface | Étage | Disponibilité | Prix | ||
|---|---|---|---|---|---|---|---|---|---|---|
| Voir | Disponible | 423 000€ | M01 | Maison | T4 | 92.65m2 | 0-RDC | Disponible | 423 000€ | Voir |
| Voir | Disponible | 419 000€ | M04 | Maison | T4 | 86.92m2 | 0-RDC | Disponible | 419 000€ | Voir |
| Voir | Optionné | 409 000€ | M06 | Maison | T4 | 88.86m2 | 0-RDC | Optionné Mais pas encore vendu 😉 | 409 000€ | Voir |


