246 000€
Appt. au 1er
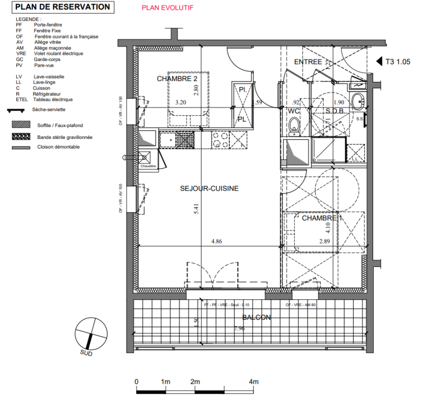
T3
60.36 m²
-
Pleurtuit (35730)
1er trimestre 2028
01 81 80 39 10
Présentation du programme "JADE"
[ NOUVEAU A PLEURTUIT - OFFRE EXCLUSIVE ] Profitez de notre offre FRAIS DE NOTAIRE OFFERTS* et devenez propriétaire à Pleurtuit.
Entre Dinard et Saint-Malo, au cœur de la Côte d’Émeraude, la nouvelle résidence JADE dévoile une architecture élégante et contemporaine, parfaitement intégrée dans un environnement verdoyant. Située rue Henri Guillaumet, à proximité immédiate du centre-bourg de Pleurtuit, cette adresse conjugue calme résidentiel et proximité des commodités : commerces, écoles, équipements culturels et sportifs sont accessibles en quelques minutes à pied ou à vélo.
Pensée pour offrir un quotidien simple et serein, JADE bénéficie d’une excellente accessibilité grâce au réseau BreizhGo et à la liaison rapide vers Saint-Malo ou Rennes.
Le programme se compose d’un bâtiment à taille humaine en R+2 proposant des appartements du 2 au 4 pièces, spacieux et lumineux, prolongés d’un jardin, balcon ou terrasse. L’architecture associe enduits clairs, touches boisées et garde-corps vitrés, pour une ambiance chaleureuse et moderne.
Chaque logement a été conçu pour allier confort, bien-être et performance énergétique, garantissant une isolation renforcée et des économies d’énergie durables.
SPÉCIAL INVESTISSEURS – Profitez du nouveau Dispositif JEANBRUN : optimisez votre fiscalité et accélérez votre patrimoine.
Idéal pour habiter ou investir, JADE à Pleurtuit offre un cadre de vie paisible entre nature et littoral, à seulement 11 minutes de Dinard et 20 minutes de Saint-Malo.
Contactez nos conseillers ou rendez-vous sur notre site Vianova.fr pour en savoir plus sur ces opportunités.
Autres logements T3 du programme "JADE"
| Disponibilité | Prix | No | Genre | Pièces | Surface | Étage | Disponibilité | Prix | ||
|---|---|---|---|---|---|---|---|---|---|---|
| Voir | Disponible | 251 000€ | 004 | Appt. | T3 | 60.36m2 Le bon plan | 0-RDC | Disponible | 251 000€ | Voir |
| Voir | Disponible | 248 000€ | 202 | Appt. | T3 | 60.36m2 | 2ème | Disponible | 248 000€ | Voir |
| Voir | Disponible | 251 000€ | 205 | Appt. | T3 | 60.36m2 | 2ème | Disponible | 251 000€ | Voir |