Prix
163 000€
Type
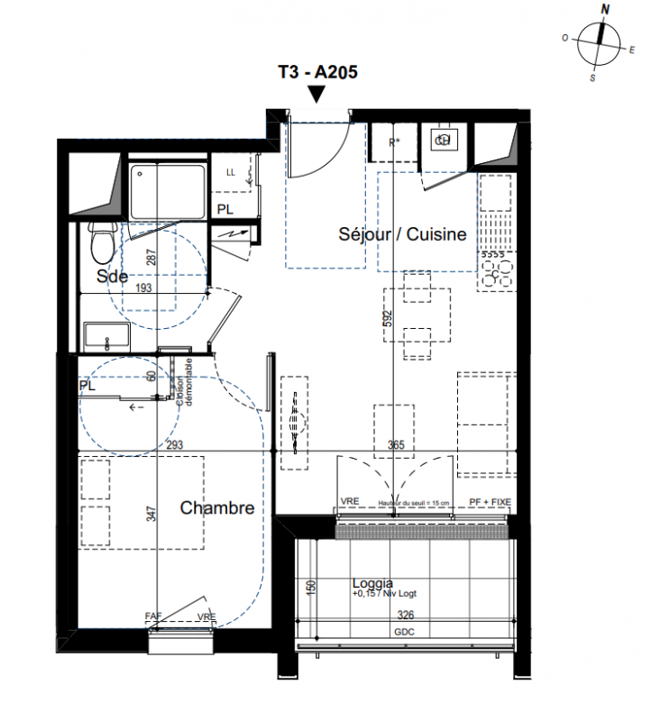
Appt. au 2ème
Pièces
T2
Surface
40.63 m²
Exposition
Sud
Ville
Combourg (35270)
Livraison
1er trimestre 2025
Informations
01 81 80 39 10

Présentation du programme "HAMEAU DE JOSEPHINE"

Découvrez le Hameau de Joséphine, résidence de 40 logements du 2 pièces au 4 pièces, répartis sur 2 petits bâtiments, proche de tout commerce, et idéalement située dans un nouveau quartier entre le coeur historique de la ville et la gare de Combourg. Cette résidence labellisée RE 2020 apportera un confort de vie au quotidien grâce à son isolation thermique performante. LA RÉSIDENCE

Autres logements T2 du programme "HAMEAU DE JOSEPHINE"

Disponibilité Prix Genre Pièces Surface Étage
Voir
Disponible
160 000€ Appt. T2 40.63m2 1er
Voir
Disponible
165 000€ Appt. T2 40.81m2 3ème
DO NOT CLICK