201 000€
Appt. au 2ème
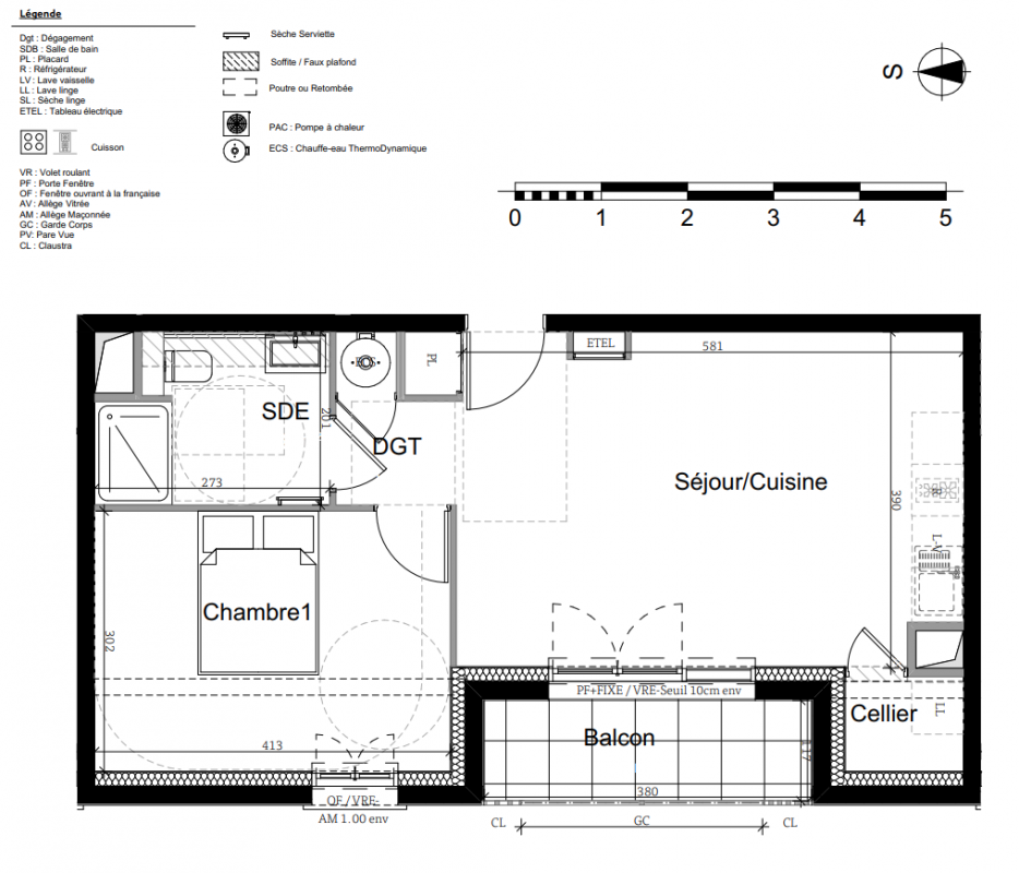
T2
43.2 m²
-
Concarneau (29900)
3ème trimestre 2028
01 81 80 39 10
Présentation du programme "LES AMARRES"
[ - LANCEMENT / OFFRE EXCLUSIVE - ] PROFITEZ D'UNE CUISINE OFFERTE POUR LES 5 PREMIERES RESERVATIONS !*
Découvrez les appartements neufs de la résidence LES AMARRES à CONCARNEAU, du studio au 4 pièces.
À Concarneau, la résidence LES AMARRES vous permet d'accéder à votre résidence principale grâce à la TVA réduite à 5.5%** et, selon votre situation, au Prêt à Taux Zéro (PTZ).
À deux pas du centre-ville, découvrez en avant-première LES AMARRES, une nouvelle résidence intimiste 26 appartements idéalement située avenue de la Gare, sur l’ancien site en cours de réaménagement urbain.
Implantée à proximité immédiate des commerces, des écoles, des services et des lignes de bus, l’adresse permet de rejoindre le port en quelques minutes et la plage des Sables Blancs à pied. Un emplacement central, pratique au quotidien, dans un quartier en pleine évolution.
Tous les logements bénéficient d’un balcon ou d’une terrasse, prolongeant naturellement les espaces de vie. Implanté dans la continuité des futurs îlots du quartier de la gare, le projet s’inscrit dans une dynamique de renouvellement urbain, à proximité immédiate du cœur historique de Concarneau.
Entre vie de centre-ville et atmosphère maritime, LES AMARRES proposera un cadre de vie équilibré, pensé pour habiter ou investir à Concarneau.
Contactez nos conseillers Lamotte ou rendez-vous sur Vianova.fr pour en savoir plus.
* Voir conditions de l'offre sur notre site Vianova.fr
** Dans le cadre d’une acquisition en résidence principale, sous conditions d’éligibilité ANRU.
Autres logements T2 du programme "LES AMARRES"
| Disponibilité | Prix | No | Genre | Pièces | Surface | Étage | Disponibilité | Prix | ||
|---|---|---|---|---|---|---|---|---|---|---|
| Voir | Disponible | 201 000€ | 104 | Appt. | T2 | 44.41m2 | 1er | Disponible | 201 000€ | Voir |
| Voir | Disponible | 205 000€ | 107 | Appt. | T2 | 43.84m2 | 1er | Disponible | 205 000€ | Voir |
| Voir | Disponible | 201 000€ | 108 | Appt. | T2 | 44.57m2 | 1er | Disponible | 201 000€ | Voir |
| Voir | Disponible | 210 000€ | 110 | Appt. | T2 | 46.78m2 | 1er | Disponible | 210 000€ | Voir |
| Voir | Disponible | 207 000€ | 201 | Appt. | T2 | 45.05m2 | 2ème | Disponible | 207 000€ | Voir |
| Voir | Disponible | 208 000€ | 204 | Appt. | T2 | 44.42m2 | 2ème | Disponible | 208 000€ | Voir |
| Voir | Disponible | 210 000€ | 207 | Appt. | T2 | 43.89m2 | 2ème | Disponible | 210 000€ | Voir |
| Voir | Disponible | 208 000€ | 208 | Appt. | T2 | 44.59m2 | 2ème | Disponible | 208 000€ | Voir |
| Voir | Disponible | 217 000€ | 210 | Appt. | T2 | 47.04m2 | 2ème | Disponible | 217 000€ | Voir |
| Voir | Disponible | 272 000€ | 301 | Appt. | T2 | 58.2m2 | 3ème | Disponible | 272 000€ | Voir |
| Voir | Disponible | 263 000€ | 304 | Appt. | T2 | 51.49m2 | 3ème | Disponible | 263 000€ | Voir |