Prix
117 000€
Type
Appt. au 3ème
Pièces
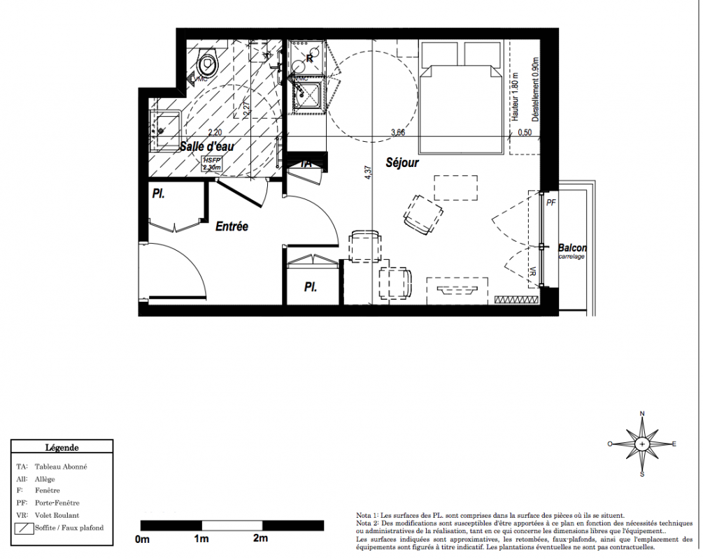
Studio
Surface
25.53 m²
Exposition
Est
Ville
Pléneuf-Val-André (22370)
Livraison
1er trimestre 2024
Informations
01 81 80 39 10

Présentation du programme "Résidence Services Seniors Les Jardins D'arcadie"

Descriptif de la résidenceSituée juste derrière la Mairie de Pléneuf et son parc arboré, la Résidence Seniors « Les Jardins d’Arcadie » est implantée dans le centre-bourg, qui rassemble les commerces et services de première nécessité : boulangerie, pharmacie, supermarché, bureau de Poste, banque… Dans une impasse calme et entourée d’un agréable jardin, la résidence offre tout le confort nécessaire pour une retraite sereine. Les personnes âgées apprécient de pouvoir rejoindre facilement la station du Val-André grâce à la navette de la résidence. Les appartements: Conçus pour des seniors autonomes et semi-autonomes, une cuisine ouverte, meublée et équipée (rangements, plaques de cuisson, réfrigérateur…), une salle d’eau avec douche à l’italienne, barre de maintien, siège de douche… Des placards aménagés, des volets roulants électriques. Les espaces collectifs : un restaurant convivial, un salon multi-activités avec une bibliothèque, un espace TV-multimédia et un coin dédié aux animations, des espaces verts où il est agréable de se promener.Descriptif gestionnaireLes Jardins d’Arcadie ont été créés en 1973 par Hervé Picot, mais le groupe immobilier Acapace, créé en 2006, a racheté cette marque en 2008. C’est donc François GEORGES, le fondateur d’Acapace, qui en est aujourd’hui président. Le groupe Acapace se développe autour de 3 principales activités : les résidences seniors pour personnes âgées, autonomes et semi autonomes sous la marque Les Jardins d’Arcadie ; l’immobilier géré, en hôtellerie, parahôtellerie et santé ; l’hôtellerie de plein air sous la marque Sandaya. Ce dernier possède 44 établissements de type résidence senior en France. 35 autres projets sont en cours de réalisation ou de montage. En 2014, le groupe Acapace a signé un partenariat avec Bouygues Immobilier, pour accentuer le développement des résidences seniors des Jardins d’Arcadie. Bouygues Immobilier a ainsi pris une participation de 40 % dans le capital du gestionnaire. Les Jardins d’Arcadie possède une double certification Iso 9001 relatif au système de management de la qualité de l’hébergement, et Qualisap, certification des services à la personne.Arguments de ventePléneuf Val André, une station balnéaire classée climatique et touristique sur la Côte Nord de la Bretagne Un emplacement idéal dans le centre ville de Pléneuf Un marché porteur : une résidence services spécialement adaptée aux besoins des seniors Des espaces collectifs de bon standing et une offre de services p...

Autres logements Studio du programme "Résidence Services Seniors Les Jardins D'arcadie"

Pas de logements disponibles